Upgraded living with private garden, studio space and sought-after Frenchay location.
Redrow-built three-bedroom semi-detached home with en-suite to principal bedroom
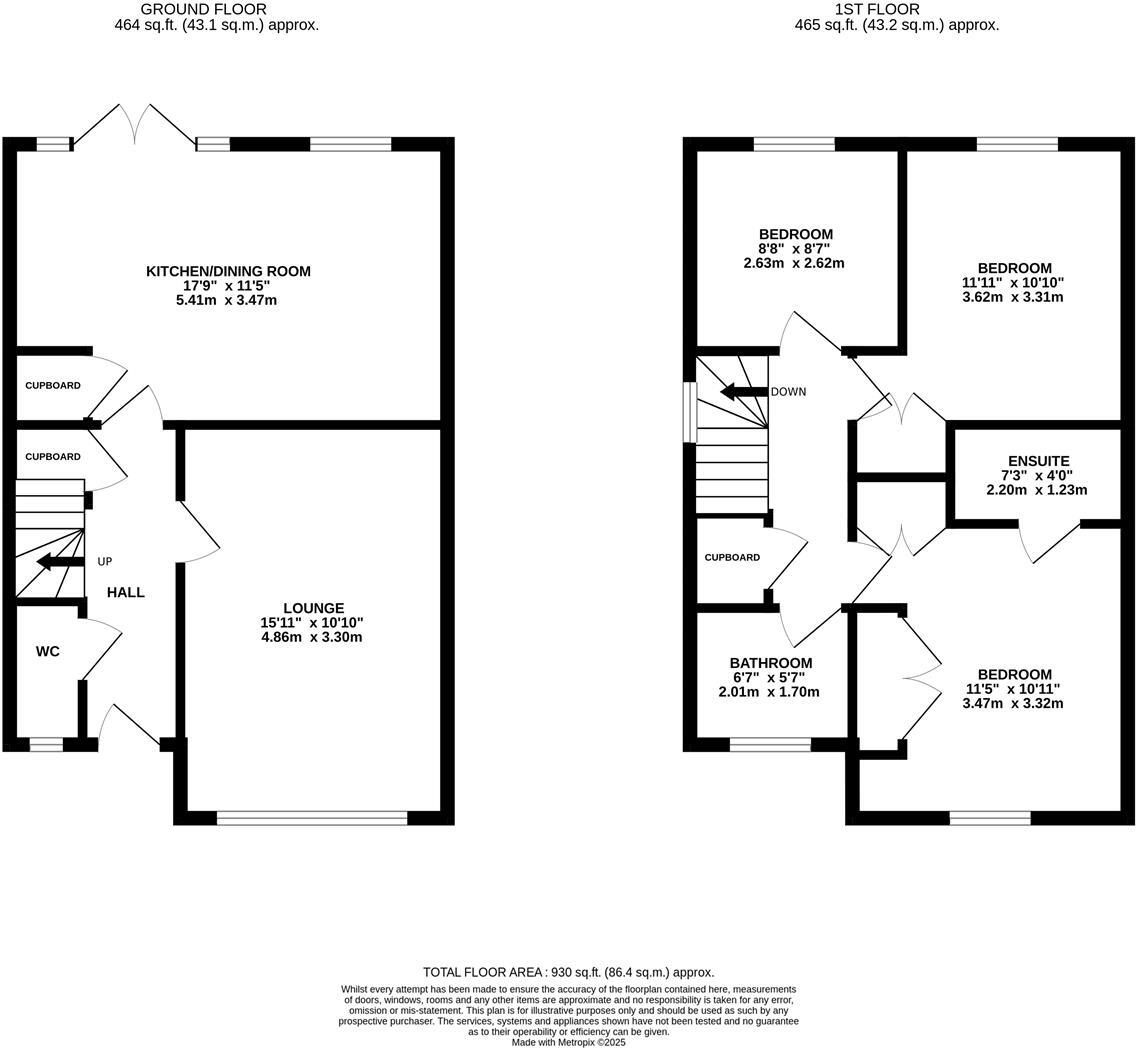
This well-presented Redrow-built semi-detached home offers comfortable family living across two floors. The principal bedroom includes an en-suite and fitted wardrobes, while the kitchen/dining room with French doors creates a bright social hub leading to a landscaped rear garden with two patio areas.
The ground floor has a generous lounge, utility cupboard and cloakroom; the current owners have commissioned several tasteful upgrades, including parquet-style flooring and quality kitchen fittings. The garage has been partly adapted to provide a gym/store and hobby room, adding useful flexible space.
Practical points to note: the garage has been divided so internal garage storage is reduced, and off-street parking is available for one vehicle only. Secondary bedrooms are modest in size, and council tax is above average. EPC Band B and mains gas central heating provide good energy performance and running-cost prospects.
Situated in sought-after Frenchay, the location combines semi-rural charm with convenient transport links, nearby green spaces and strong local schools. The property is well suited to families seeking a ready-to-move-in home with scope for personalisation, or investors targeting desirable rental locations.
3 bedroom semi-detached house for sale in Worrell Road, Frenchay, Bristol, BS16 — £450,000 • 3 bed • 2 bath • 960 ft²
4 bedroom semi-detached house for sale in Alexander Road, Frenchay, Bristol, BS16 — £550,000 • 4 bed • 2 bath
3 bedroom terraced house for sale in Mustoe Road, Frenchay, Bristol, BS16 — £375,000 • 3 bed • 2 bath • 851 ft²
3 bedroom semi-detached house for sale in Malmains Drive, Bristol, BS16 — £525,000 • 3 bed • 1 bath • 1162 ft²
3 bedroom semi-detached house for sale in Henry Shute Road, Bristol, BS16 — £400,000 • 3 bed • 2 bath • 773 ft²
4 bedroom semi-detached house for sale in Old Gloucester Road, Frenchay, BS16 — £580,000 • 4 bed • 2 bath • 1669 ft²


































































































