Close to UWE and commuter links, ready to occupy or rent out.
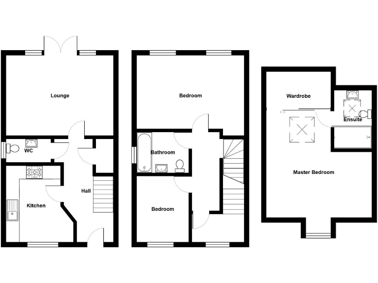
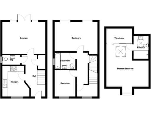
Master bedroom with built-in wardrobes and ensuite shower room
Spacious lounge/diner with French doors to enclosed rear garden
Gloss-fitted kitchen with integrated appliances and combi boiler
Off-street parking plus single attached garage with driveway access
Close walking distance to UWE campus and bus routes to Bristol centre
Modest total floor area (~773 sq ft) and small rear garden/plot
Freehold tenure; UPVC double glazing and gas central heating
Average local crime rate; property suits compact-family or rental use
Well-presented three-bedroom semi-detached townhouse arranged over three floors, offered with vacant possession. The top-floor master benefits from built-in wardrobes and an ensuite shower room, while a generous lounge/diner opens via French doors onto an enclosed rear garden. The gloss-fitted kitchen includes integrated appliances and a combi boiler provides gas central heating throughout.
Practical features include off-street parking, an attached single garage and UPVC double glazing. Located within walking distance of the UWE campus and on convenient bus routes into Bristol city centre, the house suits commuters, students and first-time buyers seeking a compact but flexible home or rental opportunity.
Be aware of the property’s modest overall size (around 773 sq ft) and a small plot. The layout is efficient, but space is more limited than larger family homes. Council tax is moderate and the area is very affluent with excellent mobile signal and fast broadband — useful for home working or student tenants.
This freehold townhouse is presented in good order and requires only routine maintenance; there are no reported flooding risks. Its combination of location, garage parking and ensuite master makes it a practical move-in ready option or a straightforward investment near UWE.
3 bedroom semi-detached house for sale in Henry Shute Road, Bristol, BS16 — £475,000 • 3 bed • 2 bath • 1207 ft²
3 bedroom terraced house for sale in Mustoe Road, Frenchay, Bristol, BS16 — £375,000 • 3 bed • 2 bath • 851 ft²
3 bedroom semi-detached house for sale in Nutfield Grove, Bristol, BS34 — £400,000 • 3 bed • 1 bath • 729 ft²
3 bedroom semi-detached house for sale in Lanes End, Bristol, BS4 — £375,000 • 3 bed • 2 bath • 995 ft²
3 bedroom semi-detached house for sale in Elizabeth Way, Mangotsfield, Bristol, BS16 9LN, BS16 — £335,000 • 3 bed • 1 bath • 549 ft²
3 bedroom semi-detached house for sale in Green Crescent, Frampton Cotterell, Bristol, BS36 — £330,000 • 3 bed • 2 bath • 775 ft²






















































































