Spacious corner garden with strong scope for modernisation and extension.
No onward chain — immediate completion possible
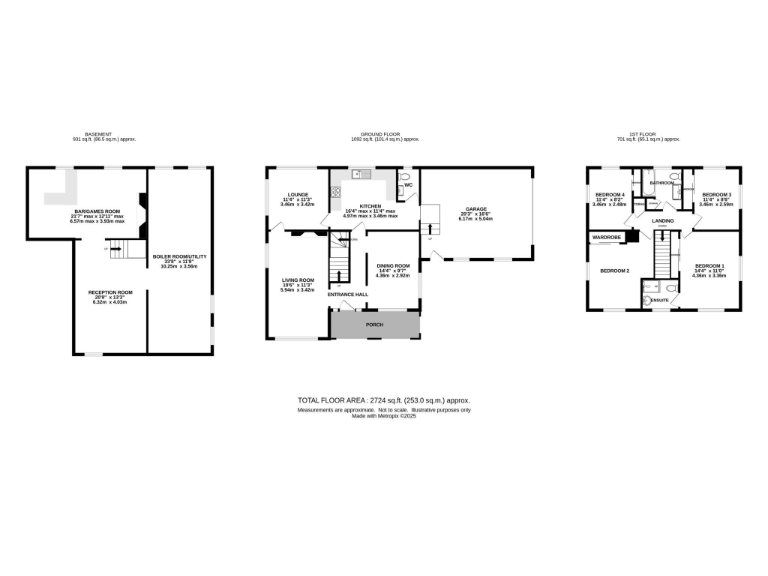
Set on a generous, private corner plot in Prestbury, this substantial four-bedroom detached house offers roughly 2,700 sq ft of flexible family living and immediate no-onward-chain possession. The mature hedging and wraparound lawns create privacy and scope for outdoor living or landscaping, while a wide driveway and integral garage provide practical off-street parking for several vehicles.
Internally the house presents a traditional mid-century layout with multiple reception rooms, a fitted kitchen, and a useful lower-ground level that currently houses a bar/games room, extra reception space and utility/boiler room. Upstairs are four double bedrooms with fitted wardrobes, a main en-suite and a family bathroom. Double glazing was installed after 2002 and heating is provided by a mains-gas boiler and radiators.
The property is sold chain-free and has significant potential to modernise and add value — ideal for a growing family seeking long-term space or buyers wanting to refurbish and extend (subject to planning). Notable practical points: the house dates from the late 1960s/early 1970s and is in need of renovation; cavity walls likely lack insulation and updating will be required to improve energy efficiency and internal finishes.
For families, local primary and secondary schools rated Good or Independent sit nearby, and the area is very affluent with low crime and fast broadband. Buyers should factor in renovation costs and the property’s relatively high council tax band when assessing outgoings.
 4 bedroom detached house for sale in Bollin Grove, Prestbury, Macclesfield, SK10 — £750,000 • 4 bed • 2 bath • 2000 ft²
 4 bedroom detached house for sale in Bollin Grove, Prestbury, Macclesfield, SK10 — £750,000 • 4 bed • 2 bath • 2000 ft² 4 bedroom detached house for sale in Packsaddle Park, Prestbury, SK10 — £895,000 • 4 bed • 2 bath • 2618 ft²
 4 bedroom detached house for sale in Packsaddle Park, Prestbury, SK10 — £895,000 • 4 bed • 2 bath • 2618 ft² 4 bedroom detached house for sale in Bollin Grove, Prestbury, MACCLESFIELD, SK10 — £1,150,000 • 4 bed • 3 bath • 2700 ft²
 4 bedroom detached house for sale in Bollin Grove, Prestbury, MACCLESFIELD, SK10 — £1,150,000 • 4 bed • 3 bath • 2700 ft² 4 bedroom detached house for sale in Holmlee Way, Prestbury, Macclesfield, SK10 — £1,250,000 • 4 bed • 3 bath • 2731 ft²
 4 bedroom detached house for sale in Holmlee Way, Prestbury, Macclesfield, SK10 — £1,250,000 • 4 bed • 3 bath • 2731 ft² 6 bedroom detached house for sale in Butley Hall House, Scott Road, Prestbury, SK10 — £2,575,000 • 6 bed • 4 bath • 4500 ft²
 6 bedroom detached house for sale in Butley Hall House, Scott Road, Prestbury, SK10 — £2,575,000 • 6 bed • 4 bath • 4500 ft² 5 bedroom detached house for sale in Meadow Drive, Prestbury, SK10 — £1,700,000 • 5 bed • 3 bath • 1649 ft²
 5 bedroom detached house for sale in Meadow Drive, Prestbury, SK10 — £1,700,000 • 5 bed • 3 bath • 1649 ft²






























































































