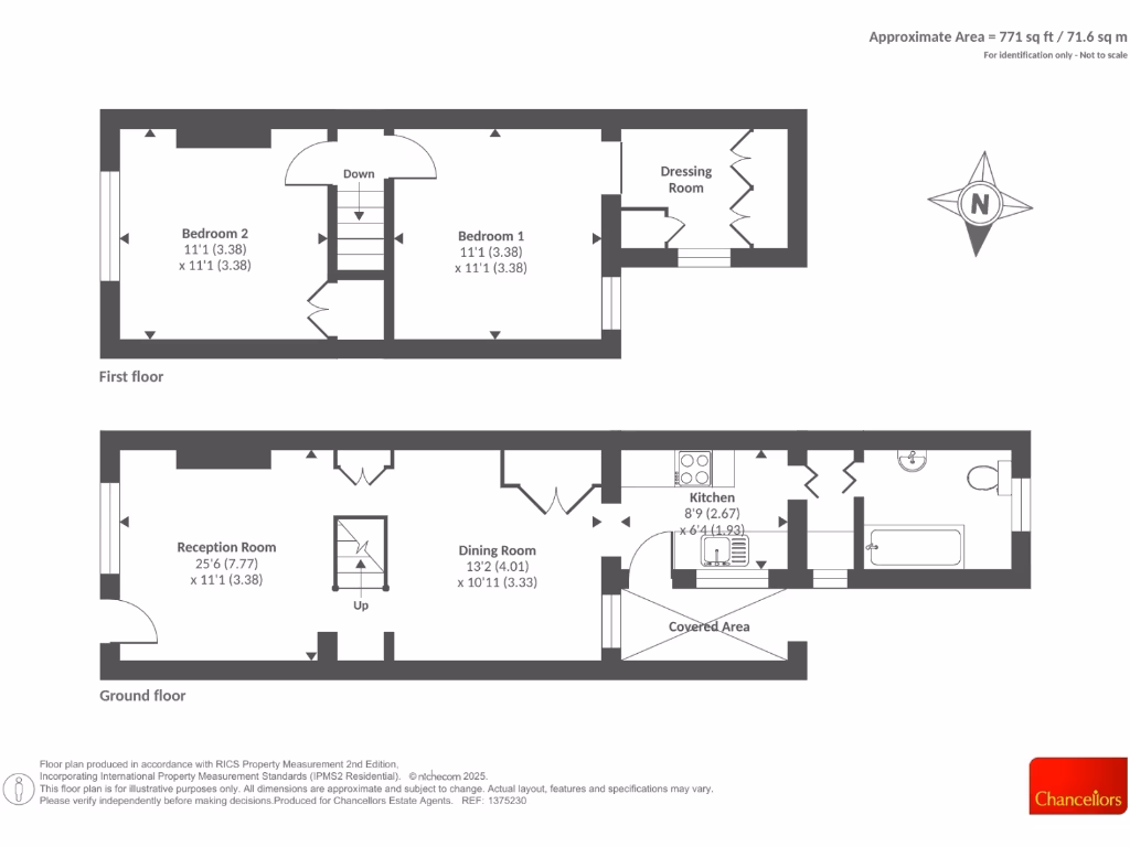
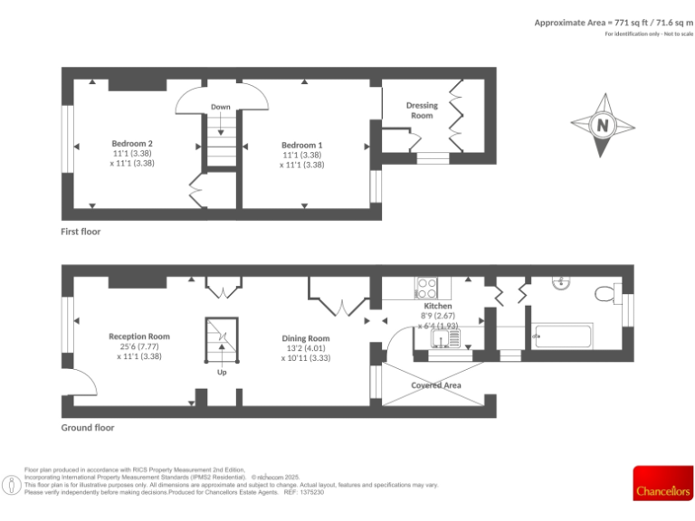
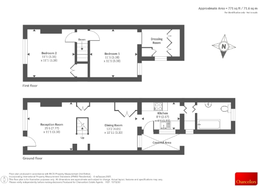
Compact period home close to town, ideal for first-time buyers or small families.
Two double bedrooms plus nursery/dressing room for flexible use
Open-plan lounge/diner with original fireplace and exposed brick character
Private rear garden; small plot suited to low-maintenance outdoor life
Driveway off-street parking — uncommon for central terraces
Modern family bathroom but only a single bathroom for three bedrooms
Small overall internal size (771 sq ft); limited living space
Solid brick construction likely lacks wall insulation; upgrade recommended
Some exterior upkeep required; area has above-average crime rates
This compact Victorian terrace blends original character with practical updates, making it a strong entry-level purchase for first-time buyers or a small family. The open-plan lounge and diner and modern kitchen provide comfortable daily living and easy entertaining, while retained period features — including a fireplace — give the house genuine charm.
Two double bedrooms plus a nursery/dressing room suit families needing flexible space; the single modern bathroom works for everyday use but may feel tight for larger households. Outside, a private rear garden and off-street driveway are valuable assets in this central Maidenhead location, although the plot and overall internal size are modest.
The property sits about 1.2 miles from Maidenhead town centre with fast broadband, excellent mobile signal, and strong local schools within easy reach. Practical considerations include solid brick walls likely without cavity insulation, some exterior upkeep and cosmetic updating needed, and an area with above-average crime statistics — all factors to weigh when viewing.
On balance, this freehold mid-terrace presents a realistic, affordable route into a well-connected town with good transport links (Elizabeth Line) and amenities nearby. It will particularly suit buyers who prioritise location and period character and who are prepared to invest modestly in cosmetic improvement and insulation upgrades.
2 bedroom terraced house for sale in The Croft, Maidenhead, Berkshire, SL6 — £400,000 • 2 bed • 1 bath • 912 ft²
3 bedroom terraced house for sale in Alwyn Road, Maidenhead, SL6 — £550,000 • 3 bed • 2 bath • 1197 ft²
4 bedroom terraced house for sale in Clare Road, Maidenhead, Berkshire, SL6 — £575,000 • 4 bed • 2 bath • 1301 ft²
3 bedroom terraced house for sale in The Croft, Maidenhead, SL6 — £450,000 • 3 bed • 1 bath • 954 ft²
2 bedroom property for sale in North Star Lane, SL6 — £375,000 • 2 bed • 1 bath • 626 ft²
3 bedroom end of terrace house for sale in Alwyn Road, Maidenhead, SL6 — £540,000 • 3 bed • 1 bath • 985 ft²


















































































