Large attic and freehold tenure close to shops and transport links.
Preferred first-floor flat with plentiful internal storage
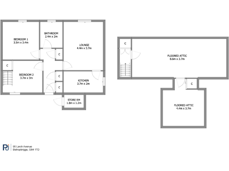
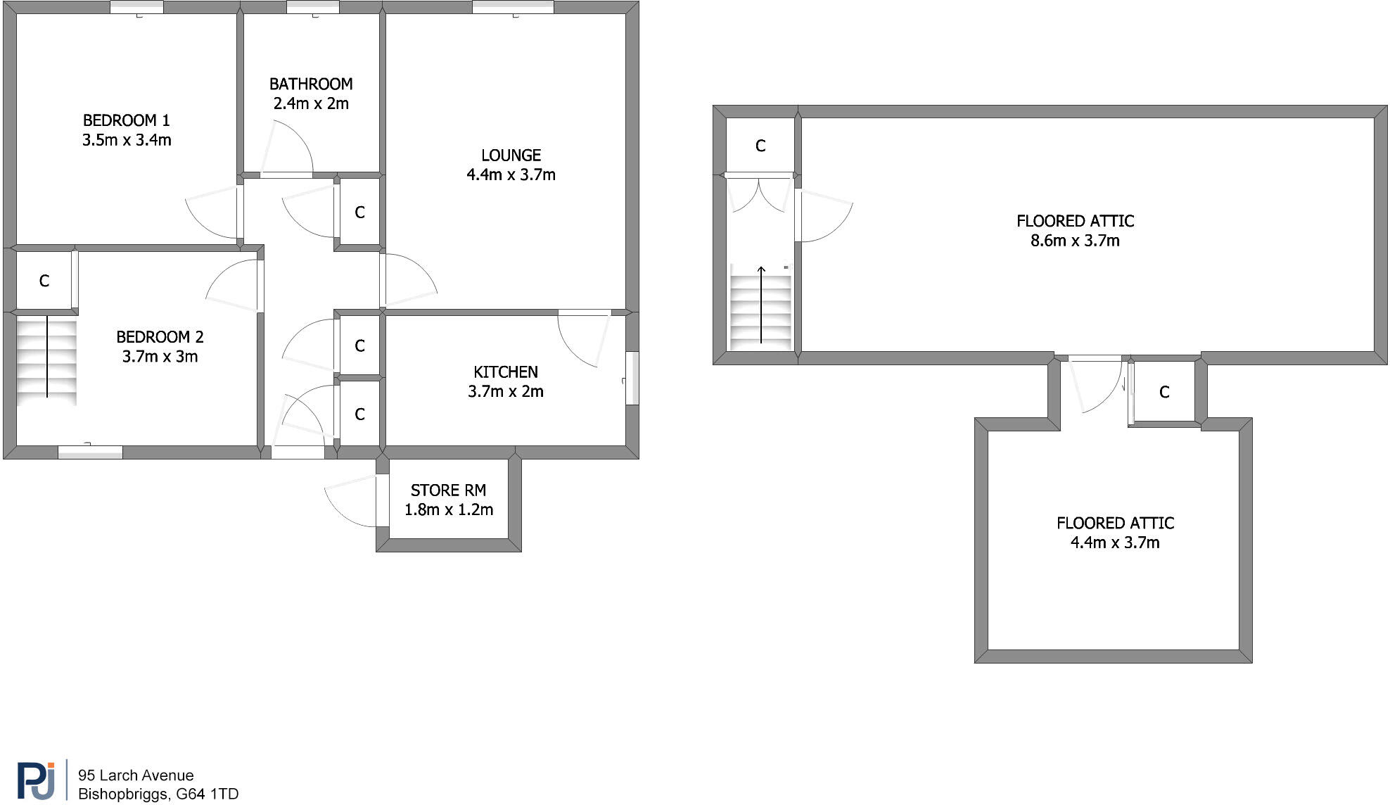
This spacious two-bedroom flat occupies a preferred first-floor position and is presented in attractive order throughout. The broad entrance hallway provides abundant built-in storage and leads to a bright lounge with a large window and neutral décor. The kitchen off the lounge is fitted and practical, and a fully tiled three-piece bathroom with over-bath shower completes the layout.
Stand-out practical features include a large floored and lined attic and freehold tenure, offering storage and future conversion potential (subject to consents). The property benefits from fast broadband, excellent mobile signal and a convenient location close to Bishopbriggs Cross shops, supermarket, leisure facilities, and frequent bus and train services into Glasgow.
Buyers should note material constraints: this sale is available to cash purchasers only, and the property sits within an area recorded as very deprived with local area classifications indicating socioeconomic challenges. There is a single bathroom for two bedrooms and the building is mid-20th century in style, so longer-term buyers may want to budget for updating or targeted improvements.
For first-time buyers or investors seeking a roomy, well-located flat with clear potential, this home offers immediate usability and scope for improvement or rental income. Its freehold status, attic storage and transport links make it a practical purchase for cash-ready buyers prepared to work within the local market context.
2 bedroom flat for sale in 21 Whitelaw Gardens, Bishopbriggs, G64 — £165,000 • 2 bed • 2 bath • 684 ft²
2 bedroom flat for sale in John Marshall Drive, Bishopbriggs, Glasgow, East Dunbartonshire, G64 — £125,000 • 2 bed • 1 bath
2 bedroom flat for sale in Flat 30, 100 Wester Cleddens Road, Bishopbriggs, G64 1HZ, G64 — £215,000 • 2 bed • 2 bath • 926 ft²
2 bedroom flat for sale in Flat 2/4, 6 St Mungo Street, Bishopbriggs, Glasgow, G64 — £210,000 • 2 bed • 2 bath • 602 ft²
1 bedroom flat for sale in 2/2 4 Hillcroft Terrace, Bishopbriggs, G64 — £139,000 • 1 bed • 1 bath • 627 ft²
2 bedroom flat for sale in Orbiston Drive, Faifley, G81 — £67,500 • 2 bed • 1 bath • 546 ft²


















































































































