Bright, low-maintenance home near transport and local amenities for commuters.
Freehold ground-floor flat with secure entry and communal gardens
Two double bedrooms with integrated wardrobe storage
Bright lounge with dining space and double glazing
Fitted kitchen; three-piece bathroom
Off-street parking bay included
Electric heating — higher running costs than gas
Very deprived wider area may affect long-term resale
1980s building; some modernisation may be desired
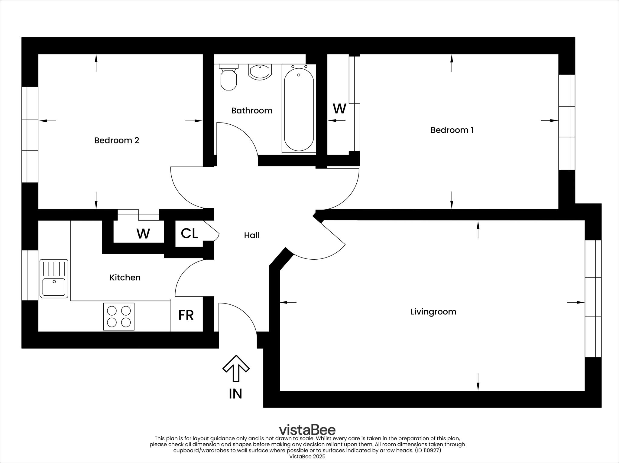
This ground-floor, two-bedroom freehold flat offers on-the-level living with easy access to Bishopbriggs amenities and transport. The apartment sits in a 1980s residential block and benefits from double glazing, electric heating and a secure entry system — practical features for a first-time buyer or commuter seeking low-stairs living.
The accommodation includes a bright lounge with space for dining, a straightforward fitted kitchen, two well-sized bedrooms with integrated wardrobe storage and a three-piece bathroom. Communal gardens and an off-street parking bay add usable outdoor and parking space, while excellent mobile signal and fast broadband support home working.
Buyers should note material considerations: the property uses electric heating which can mean higher running costs than gas, and the wider area is classified as very deprived which may influence long-term resale values. The block dates from the 1980s and is presented in generally good condition, but buyers wanting modernisation should allow a modest refurbishment budget.
Overall, this is a convenient, low-maintenance home well placed for local shops, schools, rail and bus links, and motorway access. It suits first-time purchasers or investors looking for a straightforward, ground-floor apartment with immediate rental or owner-occupier potential.
2 bedroom flat for sale in Whitelaw Gardens, Bishopbriggs, Glasgow, East Dunbartonshire, G64 — £190,000 • 2 bed • 2 bath
2 bedroom flat for sale in 21 Whitelaw Gardens, Bishopbriggs, G64 — £165,000 • 2 bed • 2 bath • 684 ft²
2 bedroom flat for sale in Flat 2/4, 6 St Mungo Street, Bishopbriggs, Glasgow, G64 — £210,000 • 2 bed • 2 bath • 602 ft²
2 bedroom flat for sale in Flat 30, 100 Wester Cleddens Road, Bishopbriggs, G64 1HZ, G64 — £215,000 • 2 bed • 2 bath • 926 ft²
2 bedroom flat for sale in 43 Springfield Square, Bishopbriggs, Glasgow, G64 — £120,000 • 2 bed • 1 bath • 575 ft²
2 bedroom ground floor flat for sale in Gallacher Avenue, Paisley, PA2 9HE, PA2 — £85,000 • 2 bed • 1 bath


















































