Quiet cul-de-sac location minutes from station and major shopping.
- Modern fitted kitchen with integrated appliances
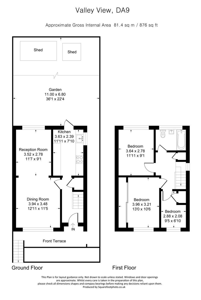
- Three bedrooms; third currently used as home office
- Single family bathroom only
- Tiered rear garden plus front roof terrace
- On-street parking; small plot size
- Freehold, double glazing, gas central heating
- Minutes from Greenhithe station and Bluewater
Tucked on a quiet no-through road, this three-bedroom end-of-terrace offers practical space and modern touches for a first home. The open-plan lounge and dining area creates a sociable ground floor, while a contemporary fitted kitchen provides good storage and integrated appliances for everyday cooking.
Upstairs there are two comfortable doubles and a smaller third room currently used as a home office — ideal for remote working or a nursery. A single bathroom serves all bedrooms. Outside, a tiered rear garden with side access and a raised roof terrace to the front extend the living space, but both areas will need routine maintenance given their layout.
The property is freehold, double-glazed, gas centrally heated and built in the mid-20th century. On-street parking is available nearby and Greenhithe Station plus Bluewater Shopping Centre are within easy reach, making commutes and shopping straightforward. Note the small plot size, only one bathroom, and average overall footprint — good for first-time buyers seeking a well-presented starter home with scope to personalise.
3 bedroom terraced house for sale in Valley View, Greenhithe, Kent, DA9 — £375,000 • 3 bed • 1 bath • 687 ft²
3 bedroom terraced house for sale in London Road, Greenhithe, DA9 — £350,000 • 3 bed • 1 bath
3 bedroom semi-detached house for sale in Maritime Close, Greenhithe, Kent, DA9 — £390,000 • 3 bed • 1 bath • 696 ft²
2 bedroom terraced house for sale in Mounts Road, Greenhithe, Kent, DA9 — £280,000 • 2 bed • 1 bath • 740 ft²
3 bedroom end of terrace house for sale in Spring Vale, Greenhithe, DA9 — £375,000 • 3 bed • 1 bath • 1091 ft²
4 bedroom end of terrace house for sale in King Edward Road, Greenhithe, DA9 — £350,000 • 4 bed • 1 bath • 937 ft²


















































