Income-producing period flat with long-term tenants and refurbishment potential.
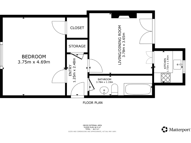
Freehold one-bedroom ground-floor flat, approx 517 sq ft
This one-bedroom ground-floor flat on Old Mill Road is being offered freehold and currently occupied by long-term tenants who pay reliably. The property produces a gross annual income of £7,200, presenting a ready-made addition for a buy-to-let portfolio without the immediate need to source occupants.
Accommodation is compact at about 517 sq ft and arranged as one bedroom, lounge, kitchen and modern three-piece bathroom. The building retains period character externally and inside there are higher ceilings and a feature fireplace in the living room, giving clear scope for cosmetic improvement to increase appeal and rental value.
Practical features include on-street parking, a communal rear garden and no flooding risk. Important considerations for buyers: the area is classified as very deprived, the flat is modest in size, and a Buyer’s Premium will be applied to secure the transaction. The existing tenancy is in place and the tenants wish to remain, so purchasers should expect continuity of occupation rather than vacant possession.
Overall this is a straightforward investment suited to committed investors or developers seeking an income-producing, period flat with refurbishment potential in Kilmarnock. The Let Property Pack contains full tenancy and income detail for buyers conducting due diligence.
1 bedroom flat for sale in Glebe Road, Kilmarnock, Ayrshire, KA1 — £32,340 • 1 bed • 1 bath • 407 ft²
1 bedroom flat for sale in Edzell Row, Kilwinning, KA13 — £68,000 • 1 bed • 1 bath • 646 ft²
2 bedroom flat for sale in Morton Place, Kilmarnock, KA1 — £62,000 • 2 bed • 1 bath • 753 ft²
1 bedroom flat for sale in Old Mill Road, Kilmarnock, KA1 — £49,995 • 1 bed • 1 bath • 496 ft²
2 bedroom flat for sale in 25 Waterside Street, Kilmarnock, Ayrshire, KA1 — £65,000 • 2 bed • 1 bath
2 bedroom ground floor flat for sale in North Hamilton Street, Kilmarnock, KA1 — £59,995 • 2 bed • 1 bath • 698 ft²






























































































