Immediate rental income with strong gross yield for investors.
Long-term tenant in situ since 2021
This tenanted two-bedroom flat offers an immediate, hands-off buy-to-let income with a long-term tenant in situ since 2021. At £500pcm and a purchase price of £62,000 the property yields c.9.7% gross, delivering rental income from day one.
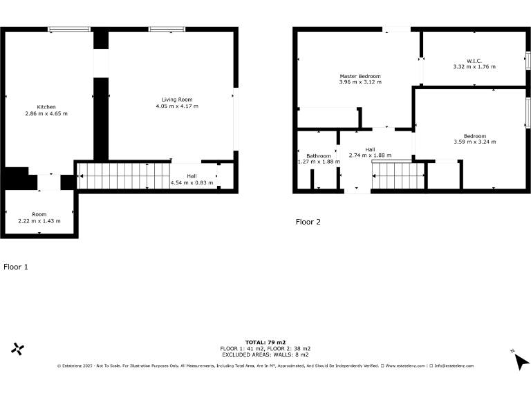
Set over ground and lower-ground floors of a traditional early 20th-century tenement, the accommodation extends to about 70 sqm and includes two bedrooms, a dressing room, living room and kitchen. The sale is freehold, fully compliant for letting, and includes the existing inventory — attractive for an investor seeking a low-activity purchase.
There are material considerations: the building shows external wear and will need cosmetic updating, and damp has been noted in images (and may require investigation). EPC rating E means limited energy performance. Indoor layout and room sizes are average for a town-centre flat and private outdoor space is minimal.
Kilmarnock offers affordable entry prices and steady tenant demand from local families and commuters, supported by good transport links to Glasgow and local regeneration activity. This property suits an investor seeking immediate income with scope to add value through refurbishment or ongoing management.
2 bedroom flat for sale in 25 Waterside Street, Kilmarnock, Ayrshire, KA1 — £65,000 • 2 bed • 1 bath
2 bedroom flat for sale in Waterside Street, Kilmarnock, Ayrshire, KA1 — £65,000 • 2 bed • 1 bath
1 bedroom flat for sale in Old Mill Road, Kilmarnock, Ayrshire, KA1 — £63,999 • 1 bed • 1 bath • 517 ft²
1 bedroom flat for sale in Glebe Road, Kilmarnock, Ayrshire, KA1 — £32,340 • 1 bed • 1 bath • 407 ft²
1 bedroom apartment for sale in Fullarton Street, Kilmarnock, East Ayrshire, KA1 — £35,000 • 1 bed • 1 bath
10 bedroom flat for sale in High Glencairn Street, Kilmarnock, KA1 4AD, KA1 — £300,000 • 10 bed • 6 bath






































































































