LE14 4NN - 3 bed spacious country cottage in Eastwell Road, LE14 4NN

View on Property Piper

3 bedroom house for sale in Green Lane, Goadby Marwood, Melton Mowbray, LE14

Summary - BERRYDOWN EASTWELL ROAD GOADBY MARWOOD MELTON MOWBRAY LE14 4NN

3 bed 1 bath House

Private plot with equestrian facilities and versatile living spaces.
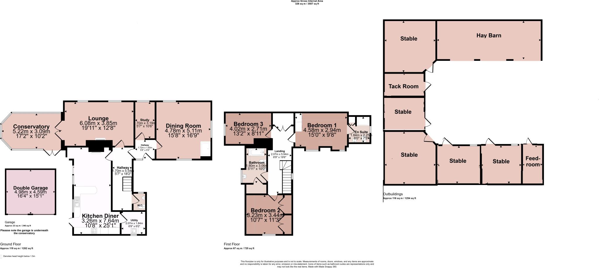
Approximately 6.8 acres including five stables and hay barn
Set just outside Goadby Marwood, this detached three-bedroom cottage sits within about 6.8 acres and includes five stables, tack rooms and a hay barn — a genuine opportunity for horse owners or anyone wanting extensive private grounds. The house offers three reception rooms, a conservatory, a kitchen-diner with a log burner and a master bedroom with en-suite, plus a gated driveway and double garage for ample parking.

The established gardens are private and mature, bordered by trees and hedging, and the outbuildings are served with power and water. Internally the property mixes traditional character with later fittings: stone walls and slate roof retain period charm while parts of the house, such as the 1980s kitchen and double glazing installed before 2002, indicate areas that may benefit from updating.

Practical points: heating is oil-fired via boiler and radiators (not on a community supply), the energy rating is E, and broadband speeds are reported as very slow — important for anyone needing reliable internet. Council Tax sits in band G, reflecting higher running costs. The property is offered freehold and with no onward chain.

In short, this is a versatile country home with established equestrian facilities and significant development potential for those willing to invest in modernisation. It will suit buyers seeking space, privacy and rural living but who accept maintenance, energy efficiency upgrades and limited broadband as part of ownership.

Property Details

Brochure Descriptions

Image Descriptions

Floorplan Description

Rooms

Textual Property Features

Target Audience

AI Tags

Detected Visual Features

EPC Details

Nearby Schools

Nearest Bars And Restaurants

,,,,}

Nearest General Shops

,,}

Nearest Grocery shops

,,}

Nearest Supermarkets

,,}

Nearest Religious buildings

,,}

Nearest Medical buildings

,,,}

Nearest Airports

}

Nearest Leisure Facilities

,,,,}

Nearest Tourist attractions

,,}

Nearest Train stations

,,,,}

Nearest Bus stations and stops

,,,,}

Nearest Hotels

,,}

Tags

Local Market Stats

Similar Properties

Meta

High Res Images

Compatible Images

Low res Images

Thumbnails

Raw Images

High Res Floorplan Images

Compatible Floorplan Images

Low res Floorplan Images

FloorplanImages Thumbnail

Raw Floorplan Images