**Standout Features:**
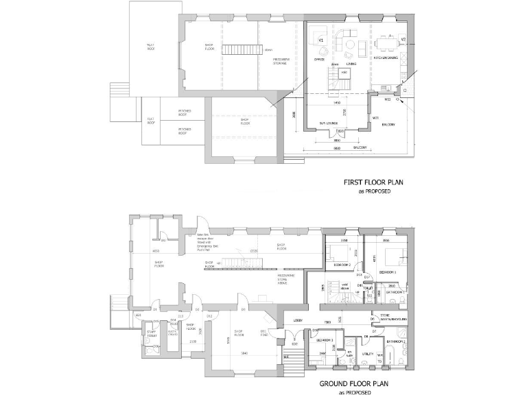
- Former Llangynfelyn Primary School with full planning permission for residential and retail use.
- Approved plans for a 3-bedroom, 3-bathroom spacious home with an open-plan living area and balcony.
- Additional portable unit currently configured as 2-bedroom accommodation.
- Generous 0.3-acre plot in a scenic rural setting.
- Located between Machynlleth and Aberystwyth, near the coast.
**Summary:**
Embrace a rare opportunity to transform the former Llangynfelyn Primary School into your dream home with approved planning permissions for a stunning residential conversion along with a retail element. This expansive property, encompassing approximately 0.3 acres, offers approved plans for a three-bedroom, three-bathroom family home featuring an airy first-floor open-plan layout opening onto a sun lounge and balcony, where you can savor sweeping views of the breathtaking Mid Wales landscape.
Accompanying this unique conversion is an established retail space, historically run as a successful antique shop, presenting further potential for income generation or a personal business venture. You'll also appreciate the flexible use of a serviced portable unit, providing the perfect setup for guest accommodation or as rental income.
Nestled in the charming village of Taliesin, the property is a short drive from both vibrant market towns and the stunning coastline, offering a desirable blend of rural charm and accessibility. With its rich character and abundant potential for renovation and expansion, this property calls to families, investors, and anyone seeking a rare combination of residential comfort and commercial opportunity. Don’t miss your chance to secure this extraordinary asset in a highly sought-after location—viewings are by appointment only!
3 bedroom detached house for sale in Pennal, Machynlleth, SY20 — £299,500 • 3 bed • 2 bath • 1419 ft²
Commercial development for sale in Llanbadarn Campus, Llanbadarn Fawr, Aberystwyth Ceredigion, SY23 3BP, SY23 — POA • 1 bed • 1 bath • 4302 ft²
5 bedroom detached bungalow for sale in Taliesin, SY20 — £360,000 • 5 bed • 2 bath • 3685 ft²
Commercial property for sale in Heol Maengwyn, Machynlleth, Powys, SY20 — £249,000 • 1 bed • 1 bath
Land for sale in Llanfarian, Aberystwyth, SY23 — £530,000 • 3 bed • 1 bath • 776 ft²
3 bedroom end of terrace house for sale in SY23 — £275,000 • 3 bed • 4 bath • 1187 ft²










































































































