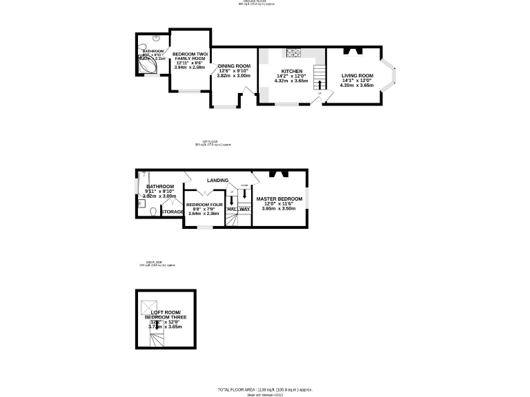
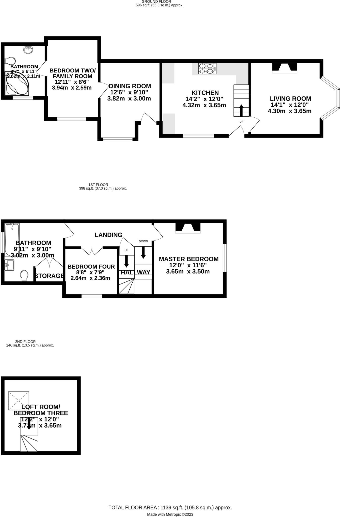
**Key Features:**
- Three bedrooms (potential for four)
- Two bathrooms
- Flexible living spaces: two/three living areas
- No onward chain
- Attractive courtyard garden
- Excellent local amenities and great schools nearby
- Low crime rate in a desirable area
- On-street parking available
- Quick access to M4 and nearby towns like Ascot
Nestled in the sought-after Chavey Down area, this charming Victorian semi-detached cottage exudes character and warmth with its traditional features like exposed beams and brick fireplaces. The well-proportioned rooms include a spacious kitchen, a cozy living room, and a dining area, making it the ideal family home. Upstairs, you'll find a generously sized master bedroom, an additional single bedroom, and a versatile loft room—perfect for guests or a home office. The large family bathroom and additional shower room add convenience, accommodating growing families or those valuing extra space.
With no onward chain, this property enables a smooth transition into your new home. Enjoy a private and sunny courtyard garden—a serene space for relaxation or entertaining. Located just five minutes from Ascot, the surrounding area boasts excellent schooling options and low crime rates, appealing to families and professionals alike. Act swiftly; properties in this desirable locale are in high demand. Don’t miss the chance to infuse your personal touch into this delightful home!
3 bedroom semi-detached house for sale in Lower Village Road, Sunninghill, Ascot, Berkshire, SL5 — £475,000 • 3 bed • 1 bath • 767 ft²
3 bedroom semi-detached house for sale in Bakehouse Court, Ascot, SL5 — £525,000 • 3 bed • 2 bath • 1094 ft²
2 bedroom end of terrace house for sale in Church Road, Ascot, SL5 — £550,000 • 2 bed • 1 bath • 1161 ft²
2 bedroom cottage for sale in Upper Village Road, Sunninghill, SL5 — £475,000 • 2 bed • 1 bath • 876 ft²
3 bedroom character property for sale in Spring Gardens, Ascot, SL5 — £475,000 • 3 bed • 2 bath • 870 ft²
3 bedroom semi-detached house for sale in Cromwell Road, Ascot, Berkshire, SL5 — £580,000 • 3 bed • 2 bath • 1096 ft²






























































































