### Standout Features:
- Three spacious bedrooms, including two large doubles and a versatile third room
- Off-street parking for multiple cars
- Enclosed front and rear gardens, ideal for families or outdoor enthusiasts
- Ultrafast broadband available—perfect for remote work or online education
- Chain-free, allowing for a quick settlement
- Located close to green spaces and local amenities
- Excellent mobile signal and fast broadband speeds
### Summary:
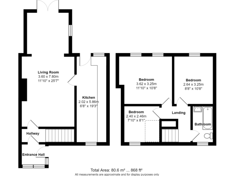
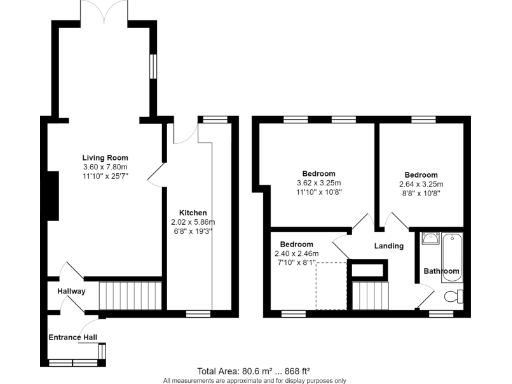
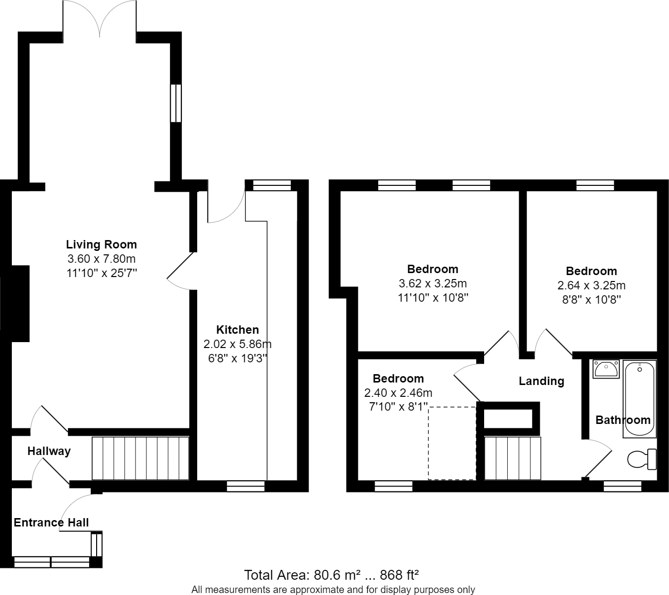
Discover this charming three-bedroom mid-terraced house in the heart of York, offered with no onward chain. Perfectly suited for families, professionals, or investors seeking rental potential near the university, this property features a well-appointed ground floor with a spacious living room enhanced by a brick-built extension leading to the rear garden, and a convenient kitchen with ample storage. Upstairs, you’ll find two generous double bedrooms, a cozy third bedroom ideal for a child's room or home office, and a family bathroom.
The property boasts off-road parking for two cars and easy-to-maintain gardens at both the front and back, complete with a shed for additional storage. While the location presents a vibrant community atmosphere, prospective owners should be aware of the above-average crime rate in the area. Given the modest council tax band B and the affordable price of £230,000, this home presents a unique opportunity to enter the York property market. Don't miss out on this fantastic offer—schedule a viewing today and envision your future in this lovely home!
3 bedroom terraced house for sale in Constantine Avenue, York, YO10 — £230,000 • 3 bed • 1 bath • 861 ft²
3 bedroom town house for sale in Burlington Avenue, Off Melrosegate, YO10 — £250,000 • 3 bed • 1 bath • 899 ft²
3 bedroom semi-detached house for sale in Spalding Avenue, YORK, North Yorkshire, YO30 — £245,000 • 3 bed • 1 bath • 715 ft²
3 bedroom terraced house for sale in Starkey Crescent, York, YO31 — £245,000 • 3 bed • 1 bath • 885 ft²
3 bedroom end of terrace house for sale in Huntington Mews, York, YO31 — £300,000 • 3 bed • 2 bath • 1064 ft²
3 bedroom semi-detached house for sale in Crichton Avenue, York, North Yorkshire, YO30 — £230,000 • 3 bed • 1 bath • 843 ft²






































































































