Compact two-bedroom town home with garden and attic potential in Matlock.
688 sqft Victorian mid-terrace house with period stone façade
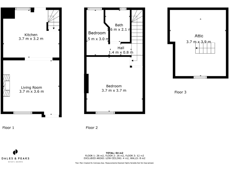
A compact Victorian terraced home in Matlock offering 688 sqft of character-filled accommodation. The ground floor has an open-plan living area with a log-burning stove and a modern-style kitchen with garden access, creating an appealing social space. Two first-floor bedrooms and a shower room suit a small household, while the loft/attic room provides extra space or conversion potential (subject to consents).
Set on Church Street within easy walking distance of local shops, cafés and transport links, this freehold property suits a first-time buyer or investor seeking a town-centre hold. The rear garden is low-maintenance and practical for outdoor use, and mains gas central heating and double glazing provide everyday comfort.
Buyers should note the EPC rating of D and that the original stone external walls are likely uninsulated — improvements could be needed to raise efficiency and reduce running costs. The house is compact and traditional in layout, so anyone wanting larger modern rooms should expect reconfiguration or extension work where feasible. Overall, this is a characterful, well-located house with scope to add value through sensible modernisation.
5 bedroom terraced house for sale in Rockvale Villas, Matlock Bath, DE4 3NX, DE4 — £400,000 • 5 bed • 2 bath • 1420 ft²
3 bedroom town house for sale in Matlock Green, Matlock, DE4 — £340,000 • 3 bed • 3 bath • 1383 ft²
2 bedroom terraced house for sale in Smedley Street, Matlock, DE4 3JD, DE4 — £230,000 • 2 bed • 1 bath • 807 ft²
2 bedroom terraced house for sale in Rutland Street, Matlock, DE4 — £210,000 • 2 bed • 1 bath • 741 ft²
3 bedroom end of terrace house for sale in Jackson Tor Road, Matlock, DE4 — £290,000 • 3 bed • 1 bath • 879 ft²
2 bedroom terraced house for sale in Bakewell Road, Matlock, Derbyshire, DE4 — £175,000 • 2 bed • 1 bath • 988 ft²


























































































































