High-eaves, turnkey B8 unit with substantial parking and optional short-term income.
Freehold new-build industrial unit, use class B8
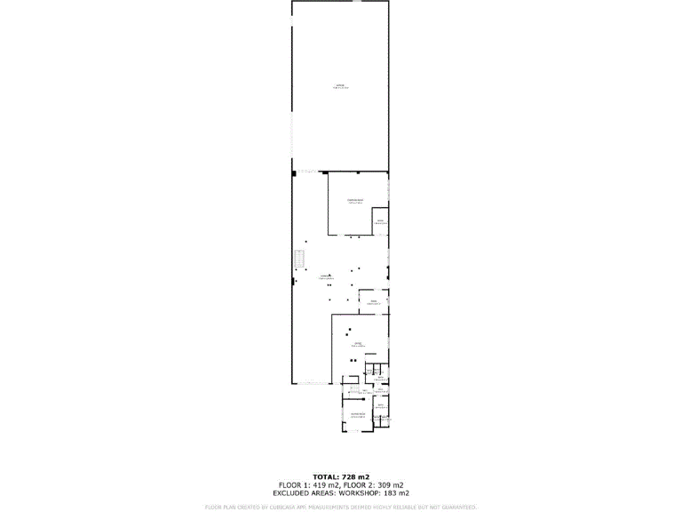
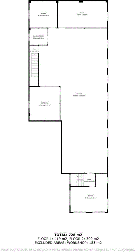
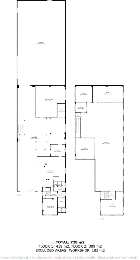
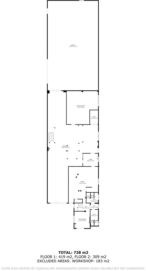
A substantial, newly built detached industrial unit in Coulsdon, offered freehold and configured for B8 (storage and distribution). The building delivers high clear eaves (up to 9.5m), large open-plan warehouse space, a fitted office mezzanine for up to 50 desks and a gated forecourt with up to 20 parking spaces — suited to operators needing significant storage, light manufacturing or distribution capacity near Gatwick and rail links.
The accommodation is newly renovated and contemporary: electric roller shutters, translucent skylights, concrete flooring in the recent extension, air-conditioned offices, staff kitchen, WCs and an on-site gym. Broadband speeds are reported very slow, though mobile signal is excellent; purchasers should plan for upgraded fixed-line connectivity if operations rely on high-capacity internet.
The vendor is open to a short-term sale-and-leaseback for up to 12 months at £220,000 per annum, providing immediate income if required. Also note the site sits adjacent to railway tracks — convenient for logistics but potentially noisy depending on operational hours. Overall the property represents a turnkey industrial asset with strong parking, high internal heights and flexible office support, attractive to investors or owner-occupiers aiming for large-scale operations.
 Industrial park for sale in Unit 21, Tait Road Industrial Estate, Tait Road, Croydon, Surrey CR0 2DP, CR0 — £815,000 • 1 bed • 1 bath • 2562 ft²
 Industrial park for sale in Unit 21, Tait Road Industrial Estate, Tait Road, Croydon, Surrey CR0 2DP, CR0 — £815,000 • 1 bed • 1 bath • 2562 ft² Industrial park for sale in Unit 14, Tait Road Industrial Estate, Tait Road, Croydon, Surrey, CR0 2DP, CR0 — £825,000 • 1 bed • 1 bath • 4264 ft²
 Industrial park for sale in Unit 14, Tait Road Industrial Estate, Tait Road, Croydon, Surrey, CR0 2DP, CR0 — £825,000 • 1 bed • 1 bath • 4264 ft² Light industrial facility for sale in Horatius Way, Croydon, Horatius Way, Croydon, Croydon, CR9 5QU, CR9 — POA • 1 bed • 1 bath
 Light industrial facility for sale in Horatius Way, Croydon, Horatius Way, Croydon, Croydon, CR9 5QU, CR9 — POA • 1 bed • 1 bath Warehouse for sale in Factory A, High Street, Old Woking, Woking, GU22 9LD, GU22 — £1,550,000 • 1 bed • 1 bath • 5613 ft²
 Warehouse for sale in Factory A, High Street, Old Woking, Woking, GU22 9LD, GU22 — £1,550,000 • 1 bed • 1 bath • 5613 ft² Commercial property for sale in Junction Road, Croydon, Surrey, CR2 — £600,000 • 1 bed • 1 bath • 4791 ft²
 Commercial property for sale in Junction Road, Croydon, Surrey, CR2 — £600,000 • 1 bed • 1 bath • 4791 ft² Light industrial facility for sale in 32-34 Bensham Lane, Croydon, CR0 2RQ, CR0 — £750,000 • 1 bed • 1 bath • 6243 ft²
 Light industrial facility for sale in 32-34 Bensham Lane, Croydon, CR0 2RQ, CR0 — £750,000 • 1 bed • 1 bath • 6243 ft²














































































