PE6 7NW - 3 bedroom cottage for sale in Chestnut Close, PE6

View on Property Piper

3 bedroom cottage for sale in Chestnut Close, PE6

Summary - 17 CHESTNUT CLOSE PEAKIRK PETERBOROUGH PE6 7NW

3 bed 2 bath Cottage

**Standout Features:**
- Charming Victorian cottage with stone facade.
- 3 double bedrooms and 2 bathrooms, ideal for families.
- Newly added versatile rear extension—perfect for a guest room, home office, or cozy snug.
- Traditional log burner in the living area, creating a warm ambiance.
- North-facing garden designed for summer relaxation.
- Average council tax and fast broadband speeds.

**Notable Concerns:**
- Small plot size with limited outdoor space.
- Old property construction with solid brick walls and no insulation (assumed).
- Double glazing has an unknown installation date.

Embrace the charm of countryside living with this delightful Victorian cottage in Peakirk, just 15 minutes from town. This freehold property features 3 spacious double bedrooms and 2 bathrooms, blending traditional aesthetics with modern comfort. The newly added extension offers flexible usage, making it a perfect fit for families and working couples. Cozy up by the traditional log burner or unwind in the serene north-facing garden, designed for sun-soaked summer afternoons.

With well-regarded schools nearby, including an 'Outstanding' rated secondary school, this location is ideal for families looking for a quiet village life with easy access to urban amenities. While the property does require some updates, its unique character and potential make it a desirable opportunity. Don’t miss the chance to experience the allure of cottage living—book your viewing today and envision your future home in this idyllic setting!

Property Details

Image Descriptions

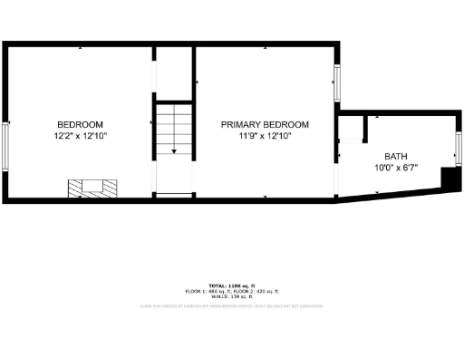
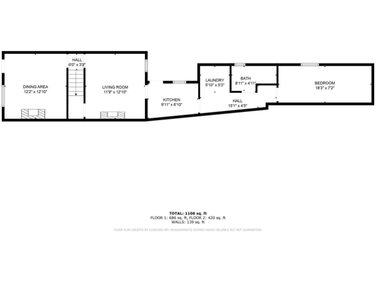
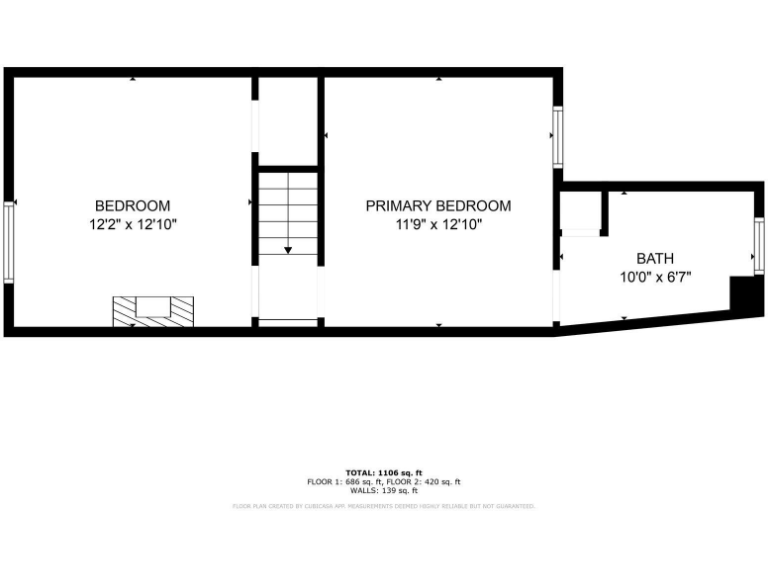
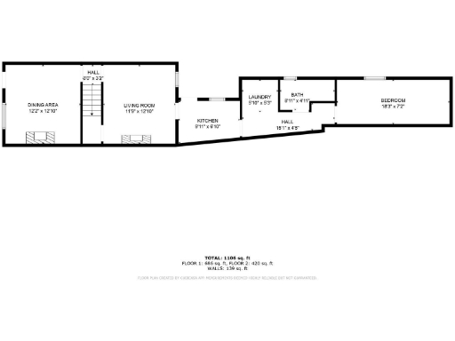
Floorplan Description

Rooms

Textual Property Features

Detected Visual Features

EPC Details

Nearby Schools

Nearest Bars And Restaurants

,,,,}

Nearest General Shops

,,}

Nearest Grocery shops

,,}

Nearest Supermarkets

,,}

Nearest Religious buildings

,,}

Nearest Medical buildings

,,,}

Nearest Leisure Facilities

,,,,}

Nearest Tourist attractions

,,}

Nearest Train stations

,,,,}

Nearest Bus stations and stops

,,,,}

Nearest Hotels

,,}

Tags

Local Market Stats

Similar Properties

Meta

High Res Images

Compatible Images

Low res Images

Thumbnails

Raw Images

High Res Floorplan Images

Compatible Floorplan Images

Low res Floorplan Images

FloorplanImages Thumbnail

Raw Floorplan Images