CO6 2QX - 5 bed grade two family home in High Street, CO6 2QX

View on Property Piper

5 bedroom semi-detached house for sale in High Street, Earls Colne, CO6

Summary - High Street, Earls Colne CO6 2QX

5 bed 3 bath Semi-Detached

Spacious historic village house with garden and parking for families.
Grade II listed period house with Inglenook fireplace and exposed beams
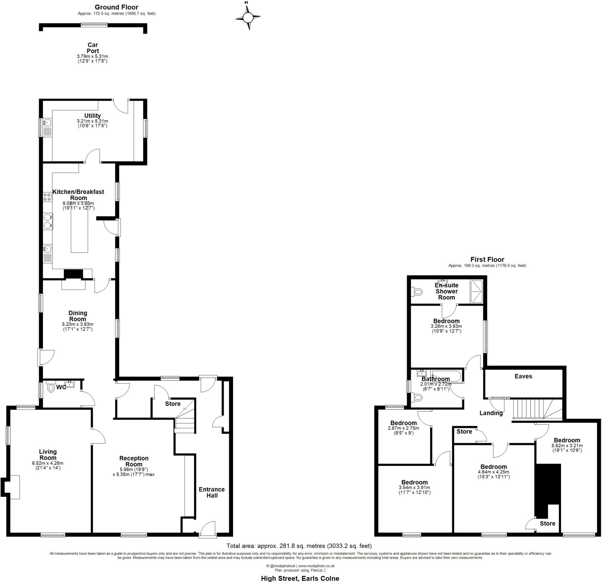
Five double bedrooms across multi-story layout, approx. 3,033 sq ft
Private carport with access from lane; room to park multiple cars
Courtyard, lawned garden and vegetable patch; large plot
Prominent High Street position in Earls Colne with local amenities
Freehold tenure and fast broadband; close to Good-rated schools
Listed status restricts alterations and can complicate maintenance
Council tax banding noted as expensive, increases running costs
This substantial Grade II listed semi-detached house offers generous family living across three floors. High ceilings, exposed beams and an Inglenook fireplace give strong period character while five double bedrooms provide flexible space for a growing household or home office use.

The ground floor has two reception rooms, a separate dining room, and a family kitchen with utility, flowing out to a Tudor-style courtyard and a large lawned garden with a vegetable patch. Private carport access from a quiet lane allows parking for multiple vehicles, unusual for a high-street location.

Located on Earls Colne High Street, the property sits within a well-served village with schools rated Good, local shops, a Co-op, healthcare and regular bus links; fast broadband supports modern working from home. The freehold tenure and substantial total area (approx. 3,033 sq ft) make it a long-term family home.

Buyers should note the listed status: heritage protections will restrict alterations and can make maintenance and renovations more complex and costly. Council tax is described as expensive, which will affect ongoing running costs. These are important considerations alongside the home's clear period appeal.

Property Details

Brochure Descriptions

Image Descriptions

Floorplan Description

Rooms

Textual Property Features

Target Audience

AI Tags

Detected Visual Features

Nearby Schools

Nearest Bars And Restaurants

,,,,}

Nearest General Shops

,,}

Nearest Grocery shops

,,}

Nearest Supermarkets

,,}

Nearest Religious buildings

,,}

Nearest Medical buildings

,,,}

Nearest Airports

}

Nearest Leisure Facilities

,,,,}

Nearest Tourist attractions

,,}

Nearest Train stations

,,,,}

Nearest Bus stations and stops

,,,,}

Nearest Hotels

,,}

Tags

Local Market Stats

AirBnB Data

Similar Properties

Meta

High Res Images

Compatible Images

Low res Images

Thumbnails

Raw Images

High Res Floorplan Images

Compatible Floorplan Images

Low res Floorplan Images

FloorplanImages Thumbnail

Raw Floorplan Images