Spacious listed cottage with annex, garage and character-filled living in Dunmow.
Grade II Listed cottage with original 1600s timbers and high ceilings
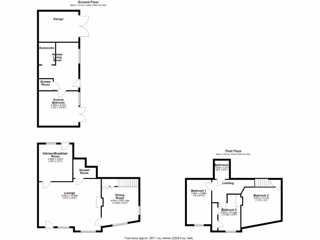
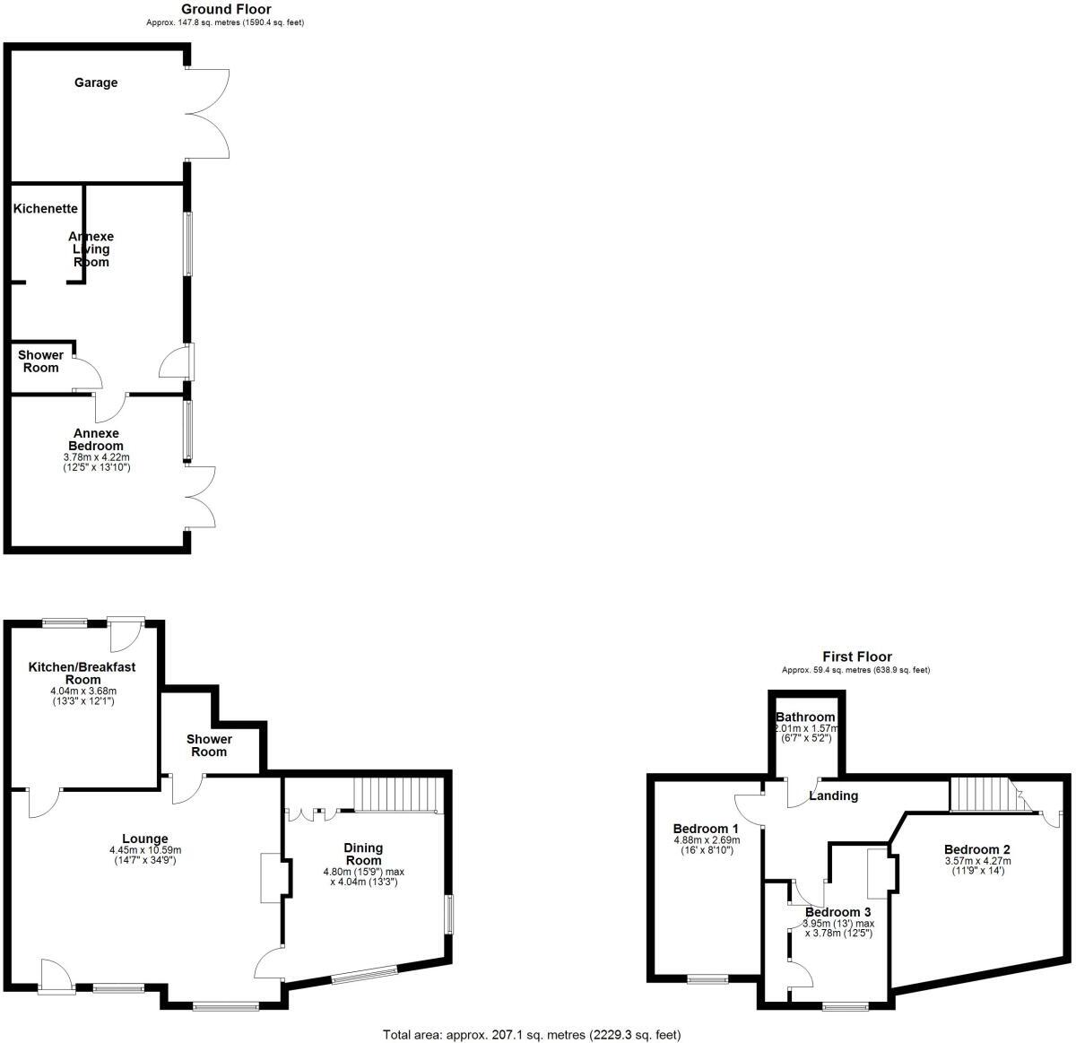
Versatile 2,200+ sq ft: 3-bed main house plus 1-bed annex/studio
Bespoke kitchen/breakfast room and separate dining room
Detached self-contained annex with shower — good for guests or income
Garage plus driveway parking for several vehicles
Private courtyard garden — low-maintenance outdoor space
EPC Exempt and Council Tax Band E (above-average running costs)
Listed status will restrict alterations and require specialist consent
This Grade II Listed cottage, with parts dating to the 1600s, offers more than 2,200 sq ft of versatile living across multiple levels. High ceilings, exposed timbers and bespoke kitchen/breakfast room give strong period character alongside modern finishes from a recent renovation. The main house provides three generous bedrooms, two bath/shower rooms, a large living room and separate dining room.
A significant feature is the detached, self-contained one-bedroom annex/studio with shower facilities — ideal for guests, home office or rental income. The property also includes an adjoining single garage and driveway with parking for several vehicles. A private courtyard garden provides a low-maintenance outdoor space that opens directly onto the annex.
Practical points to note: the house is Grade II Listed, which will affect permitted alterations and may complicate some renovation works. The property is EPC exempt and falls in Council Tax Band E (above-average costs). Overall, this substantial period home will suit buyers seeking historic character, flexible accommodation and additional annex space, provided they accept the listed-status constraints.
5 bedroom semi-detached house for sale in Burton End, Stansted, CM24 — £498,000 • 5 bed • 2 bath • 1929 ft²
3 bedroom terraced house for sale in Newbiggen Street, Thaxted, Dunmow, CM6 — £400,000 • 3 bed • 1 bath • 1324 ft²
4 bedroom detached house for sale in The Broadway, Dunmow, Essex, CM6 — £1,250,000 • 4 bed • 1 bath • 2870 ft²
3 bedroom detached house for sale in Parndon Wood Road, Harlow, Essex, CM19 — £975,000 • 3 bed • 1 bath • 1360 ft²
3 bedroom cottage for sale in The Street, Manuden, Bishop's Stortford, Essex, CM23 — £500,000 • 3 bed • 1 bath • 1025 ft²
3 bedroom semi-detached house for sale in The Street, Stoke By Clare, Suffolk , CO10 — £450,000 • 3 bed • 2 bath • 1218 ft²


























































































