**Standout Features:**
- Substantial five-bedroom detached family home
- Four bathrooms, including two en-suites
- Open-plan family dining kitchen with built-in appliances
- Spacious private rear garden with patio
- Ample off-street parking with driveway
- Modern construction (built 2012 onwards) with double glazing
- Located in a highly sought-after area with excellent schools
**Potential Downsides:**
- Average-sized overall property
- Council tax rated as expensive
- Ground rent of £305 (average)
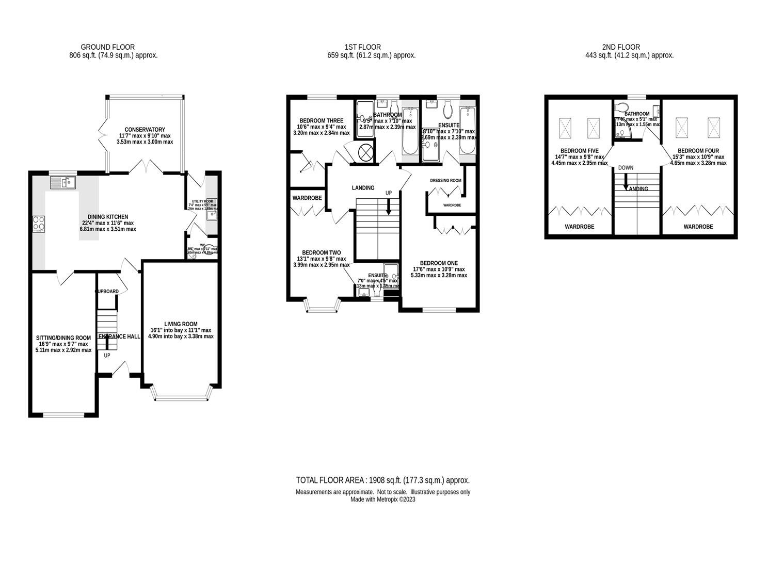
Welcome to this exceptional five-bedroom detached home, generously accommodating nearly 2000 sq. ft. of contemporary living space spread across three floors, ideal for families seeking comfort and style. The standout open-plan family dining kitchen is perfect for gatherings, while the additional living room, conservatory, and large dining room provide various entertaining options. All five bedrooms are well-proportioned, featuring two en-suites and a modern family bathroom to ensure convenience for everyone.
Situated in a prestigious neighborhood close to local shops, parks, and highly-rated schools—including the outstanding Loreto Grammar School—this home is perfect for families aiming for a nurturing environment. The expansive rear garden is a private retreat for outdoor activities or entertaining guests, complemented by a convenient patio area. With low crime rates and fast broadband, this home is not only practical but also a secure haven.
Don't miss your chance to own a property in this affluent area with remarkable potential—schedule your viewing today and imagine making this ideal family home yours!
4 bedroom detached house for sale in Aylesbury Close, Broadheath, Altrincham, WA14 — £650,000 • 4 bed • 2 bath • 1286 ft²
4 bedroom house for sale in Swithland Road, West Timperley, Altrincham, WA14 — £465,000 • 4 bed • 3 bath • 1659 ft²
5 bedroom detached house for sale in Eyebrook Road, Bowdon, WA14 — £2,000,000 • 5 bed • 4 bath • 4667 ft²
6 bedroom detached house for sale in Hale Road, Hale Barns, WA15 8XR, WA15 — £1,500,000 • 6 bed • 4 bath • 2338 ft²
5 bedroom detached house for sale in Green Gate, Hale Barns, Altrincham, WA15 — £950,000 • 5 bed • 3 bath • 3077 ft²
6 bedroom detached house for sale in Hale Road, Hale Barns, WA15 — £1,895,000 • 6 bed • 3 bath • 5192 ft²






























































































