Two-bedroom single-storey home with exceptional grounds and parking.
Large detached bungalow on an extensive, well‑landscaped plot
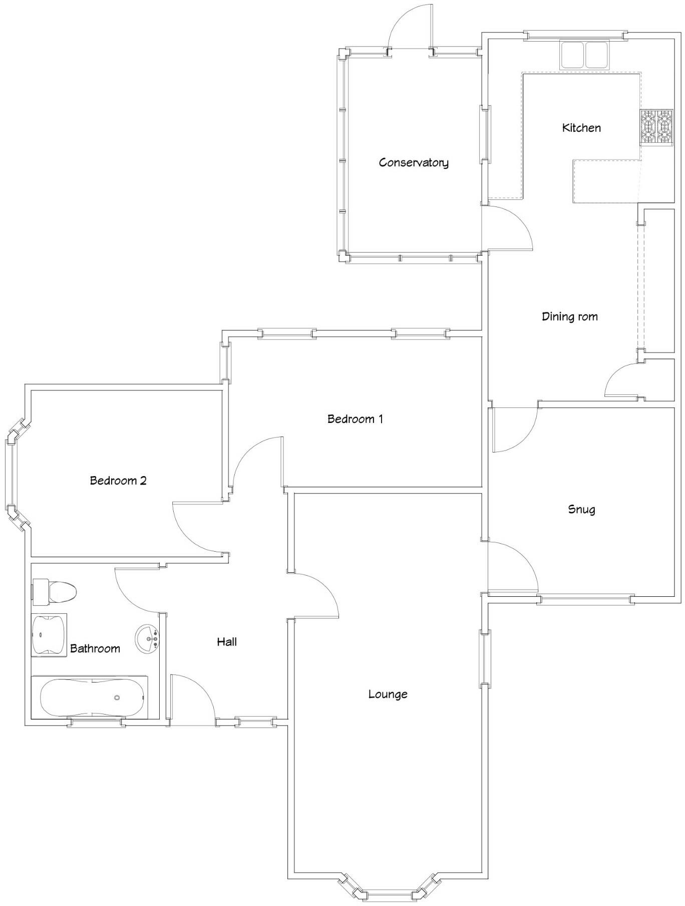
Fourways is a spacious mid‑20th century detached bungalow set on an extensive, beautifully planted plot. The house offers two generous double bedrooms, a large lounge with bay window, a separate sitting room, and a long kitchen/dining area that opens to a conservatory — all arranged on one level for easy living. The grounds are the standout feature: mature shrubs, specimen palms, a fishpond, greenhouse and substantial parking including a garage and carport.
This property suits buyers seeking a peaceful, garden‑focused home on the edge of Newbridge. Commuter links to Cardiff and the M4 are nearby, the town centre and rail link are within reach, and local schools and walks are close by. The bungalow’s terrazzo hallway, bay windows and generous room sizes give it period character and comfortable proportions throughout its 969 sq ft layout.
Practical points are straightforward: the house has one family bathroom and average broadband speeds, and is set within an area of high deprivation despite very low crime and no flood risk. The large plot and single‑storey layout present good potential for landscaping projects or modest extensions, subject to consent. Tenure is freehold.
Overall, Fourways will appeal to families or downsizers who prioritise outdoor space, single‑level living and privacy, and who are comfortable taking on a home that benefits from sympathetic updating rather than full renovation.
3 bedroom detached house for sale in Bryn Road, PONTLLANFRAITH NP122EY, NP12 — £340,000 • 3 bed • 2 bath • 1374 ft²
2 bedroom detached bungalow for sale in New Bryngwyn Road, Newbridge, NP11 — £275,000 • 2 bed • 1 bath • 753 ft²
3 bedroom detached bungalow for sale in Park Road, Newbridge, NP11 — £249,750 • 3 bed • 1 bath • 786 ft²
3 bedroom detached bungalow for sale in Ton Road, Cwmbran, NP44 — £290,000 • 3 bed • 1 bath • 840 ft²
4 bedroom detached bungalow for sale in Oak Street, Blackwood, NP12 — £325,000 • 4 bed • 3 bath • 1588 ft²
4 bedroom detached bungalow for sale in Manor Road, Abersychan, Pontypool, NP4 — £475,000 • 4 bed • 2 bath • 1149 ft²














































































































































