Large garden, double garage and flexible rooms for modern family living.
Large detached dormer bungalow on generous plot
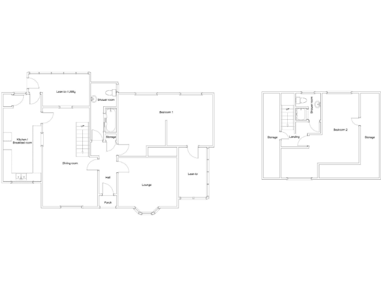
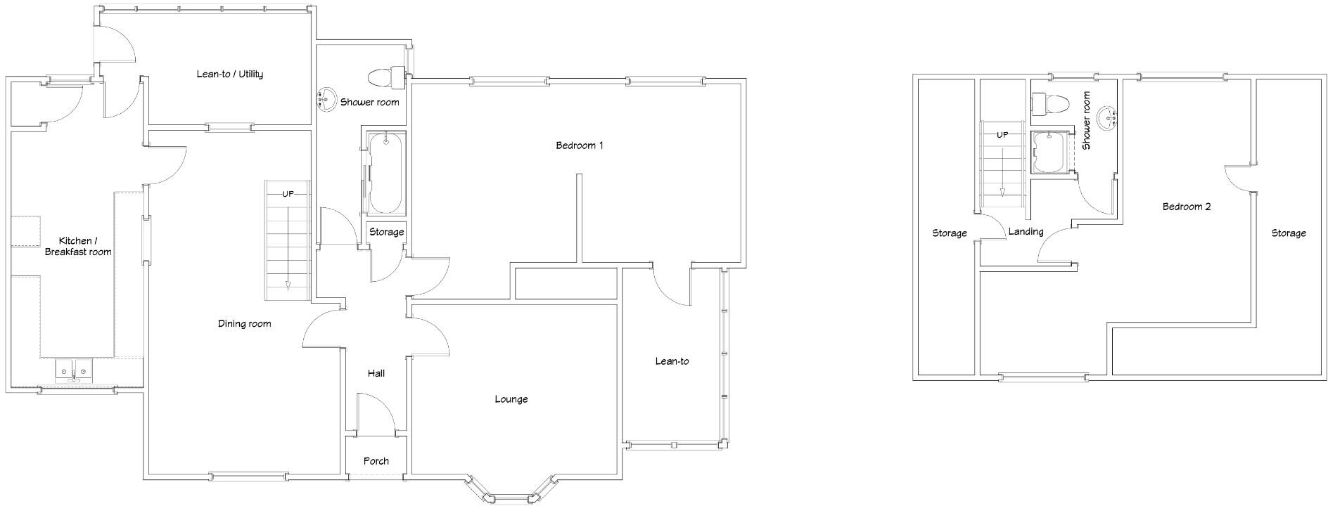
A roomy detached dormer bungalow set on a large plot, this mid‑20th‑century home offers flexible living across generous ground and first-floor accommodation. The layout includes a large lounge/diner, a second reception that can serve as a third bedroom, a substantial kitchen/breakfast room, two shower rooms and useful utility space — ideal for families needing adaptable space. The garden is mature and private with established planting, sun seating areas and a double garage plus driveway, so parking and outdoor life are well catered for.
Practical advantages include a recently installed boiler, excellent mobile signal and fast broadband, plus no reported flood risk. Room proportions are a standout: both ground-floor and dormer bedrooms are notably large and there is plentiful storage on the landing. The property has been extended in part and presents strong potential for further updating or reconfiguration to suit modern tastes.
Important considerations: the surrounding area is described as very deprived, which may influence resale prospects and local services; tenure details are not provided and should be checked; and while the house is well maintained in places, some cosmetic updating and modernisation are likely to be needed to achieve contemporary finishes. Buyers should also confirm any historic permissions for extensions.
Overall this is a spacious family house with garden, garage and plenty of scope — a practical purchase for those who prioritise room, outdoor space and good connectivity, and who are comfortable managing refurbishment or improvements to personalise the home.
3 bedroom semi-detached house for sale in Tollgate Close, Caerphilly, CF83 3AY, CF83 — £325,000 • 3 bed • 2 bath • 1259 ft²
4 bedroom detached house for sale in Bethel Place, Nantyglo, NP23 — £420,000 • 4 bed • 3 bath • 2158 ft²
3 bedroom bungalow for sale in 4 Tynewydd Farm Close, Pontnewydd, Cwmbran, Gwent, NP44 — £360,000 • 3 bed • 1 bath • 1518 ft²
3 bedroom semi-detached bungalow for sale in Maesglas, Tredegar, NP22 — £280,000 • 3 bed • 2 bath
3 bedroom detached bungalow for sale in Blackwood, NP12 — £318,000 • 3 bed • 2 bath • 1955 ft²
3 bedroom bungalow for sale in Melville Avenue, Old St. Mellons, Cardiff, CF3 — £425,000 • 3 bed • 2 bath • 2773 ft²






































































































































































