**Standout Features:**
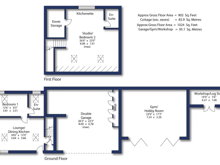
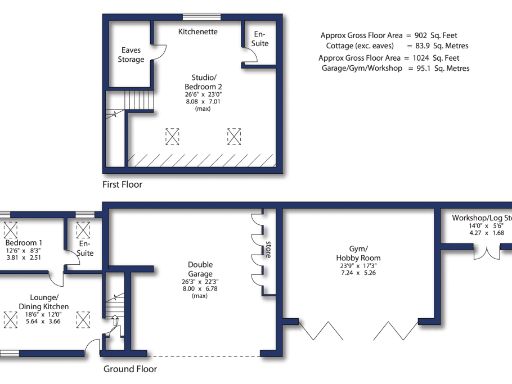
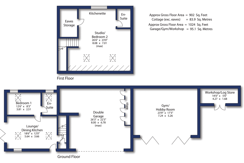
- Unique five-bedroom converted barn with a two-bedroom cottage.
- Set on approximately 2 acres with stunning gardens and countryside views.
- Private gated driveway and double garage with ample parking.
- Extensive living space over 4,851 sqft with various reception rooms, including a large games room.
- Equestrian potential and a serene, private aspect.
- No onward chain, offering immediate availability.
- Excellent transport links: 25 minutes to Leeds Train Station and 35 minutes to Leeds Bradford Airport.
- Environmentally friendly features, including underfloor heating throughout.
Nestled in a picturesque setting, East Barn is a rare gem that combines the charm of a converted barn with modern facilities, providing a spacious family home. This impressive property boasts over 4,851 sqft of living space, perfectly designed for both entertaining and family life, featuring a sumptuous lounge, sizable family room with a bespoke bar, and a state-of-the-art kitchen/dining area. The layout flows beautifully, with multiple reception rooms and a games room facilitating versatility and comfort.
The principal suite and additional double bedrooms offer breathtaking views and modern en-suites, ensuring comfort for all family members. Additionally, the separate two-bedroom cottage adds appeal for guests or potential rental income, seamlessly designed to match the main dwelling’s character.
Surrounded by approximately 2 acres of beautifully landscaped grounds, the outdoor space is ideal for family gatherings and children's play. The electric gates and extensive driveway enhance both privacy and convenience, while nearby equestrian facilities make it perfect for horse enthusiasts.
With no onward chain, the opportunity to acquire this remarkable property should not be overlooked. Its wealth of features and idyllic rural setting present a unique lifestyle opportunity for families or investors looking to capitalize on this hidden treasure.
6 bedroom detached house for sale in Roker Lane, Pudsey, West Yorkshire, LS28 — £1,250,000 • 6 bed • 2 bath • 3581 ft²
4 bedroom semi-detached house for sale in Uppermoor, Pudsey, West Yorkshire, LS28 — £485,000 • 4 bed • 2 bath • 1863 ft²
6 bedroom house for sale in Wike Ridge Lane, Leeds, West Yorkshire, LS17 — £2,500,000 • 6 bed • 6 bath • 9000 ft²
5 bedroom barn conversion for sale in The Arch Barn, Scarsdale Ridge, Bardsey, Leeds, LS17 — £1,595,000 • 5 bed • 4 bath • 2713 ft²
4 bedroom barn conversion for sale in High House Barn, Luddendenfoot, Halifax, West Yorkshire, HX2 — £2,000,000 • 4 bed • 2 bath • 2852 ft²
9 bedroom detached house for sale in Ash House Farm, Sconce Lane, Baildon, Shipley, West Yorkshire, BD17 — £2,375,000 • 9 bed • 8 bath • 8810 ft²






































































































































































































































































