Chain-free Victorian conversion with planning permission for an outbuilding.
955 sq ft three double bedrooms with large south-facing garden
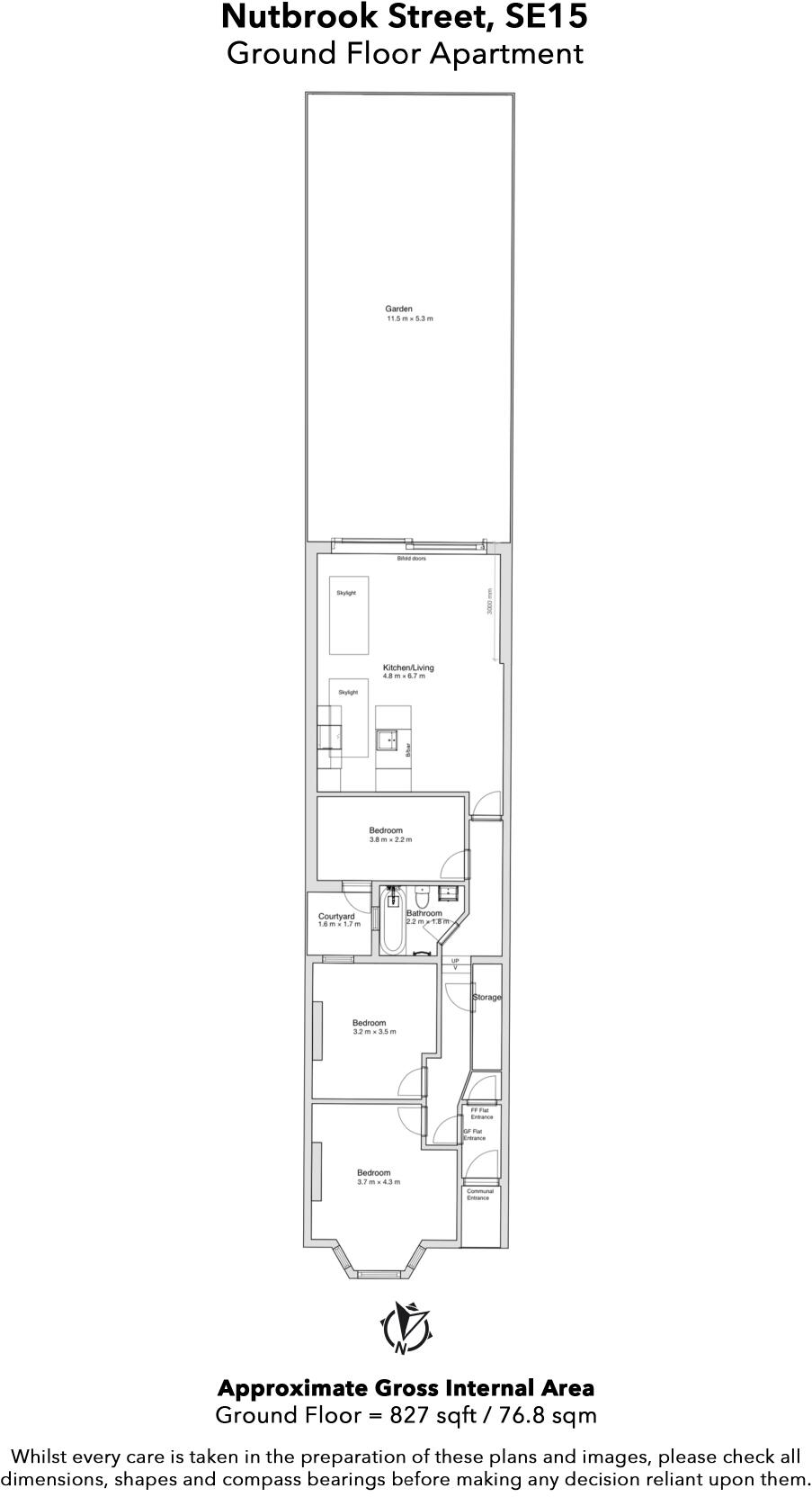
This extended Victorian conversion delivers a generous 955 sq ft three-double-bedroom flat with a large, south-facing garden and plenty of natural light. The property has been newly renovated and features an open-plan kitchen/dining/living room with skylights and bi-fold doors, integrated appliances, and a substantial footprint ideal for family living or shared occupancy.
Practical positives include a private front door, useful under-stairs storage, a windowed bathroom with contemporary fittings, and planning/freeholder permission already granted for an outbuilding (the developer can install it during the current refurb if reserved). Chain-free sale and fast broadband make the flat ready to occupy or let.
Notable drawbacks are that the property is leasehold, there is only one bathroom for three double bedrooms, and the local area records above-average crime; purchasers should check lease length and security measures. Service charge is £1,562 per year and council tax is in Band B (relatively low).
3 bedroom maisonette for sale in Kings Grove, Peckham, SE15 — £835,000 • 3 bed • 1 bath • 1132 ft²
3 bedroom flat for sale in Kings Grove, Peckham, SE15 — £835,000 • 3 bed • 1 bath • 1132 ft²
3 bedroom flat for sale in Shenley Road, London, SE5 — £650,000 • 3 bed • 2 bath • 934 ft²
3 bedroom terraced house for sale in Bellenden Road, London, SE15 — £1,100,000 • 3 bed • 1 bath • 1216 ft²
5 bedroom terraced house for sale in Howden Street, Peckham Rye, SE15 — £1,425,000 • 5 bed • 1 bath • 1580 ft²
3 bedroom maisonette for sale in Kings Grove, Peckham, SE15 — £835,000 • 3 bed • 1 bath • 1120 ft²






















































