**Standout Features:**
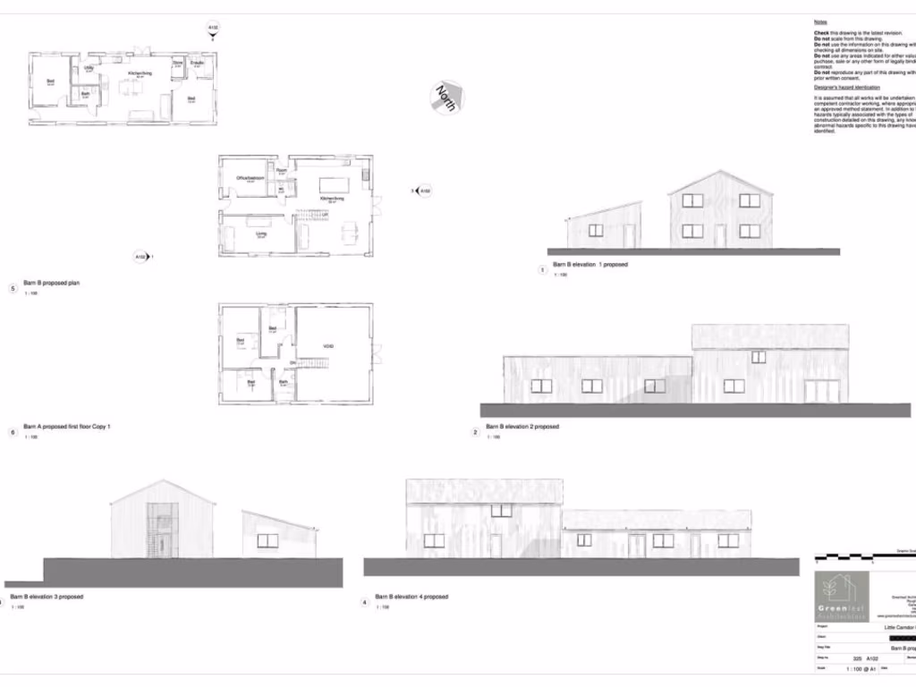
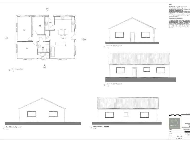
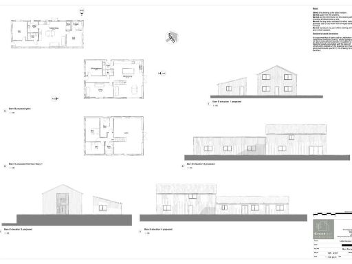
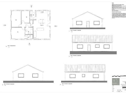
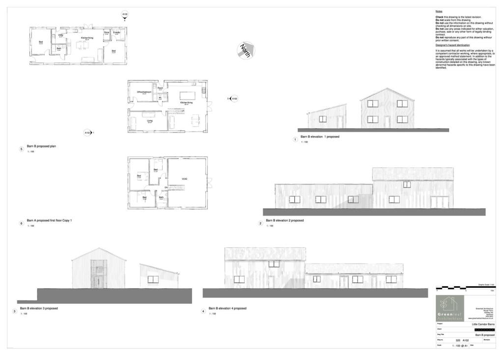
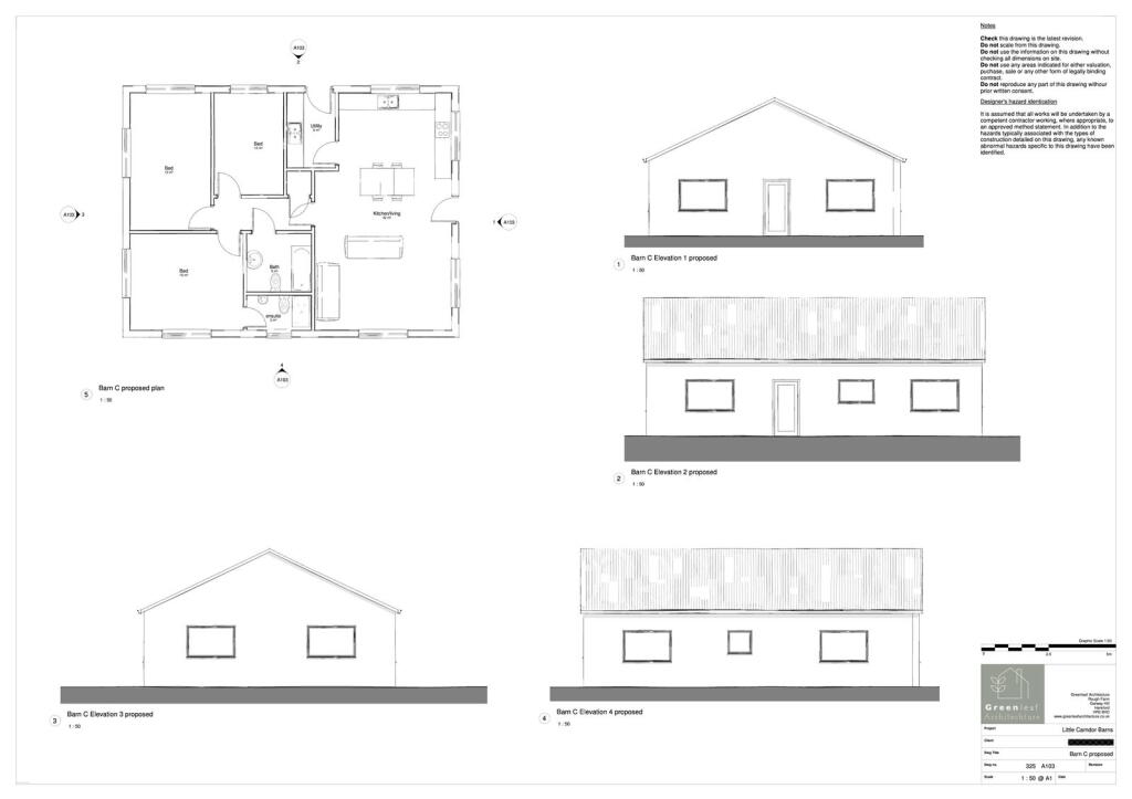
- Class Q approval for 5 barn conversions (Ref: 251259)
- Elevated countryside setting on Garway Hill with stunning views
- Two 3-bedroom semi-detached and three additional barn conversions
- Full prior approval for residential use
- Existing access and hardstanding for driveways and parking
- No major structural issues confirmed in full survey (May 2025)
- Average mobile signal and fast broadband available
**Summary:**
Discover a rare and exceptional development opportunity at Little Camdore Farm, where tranquil rural living meets modern potential. Approved for Class Q conversion, this picturesque site offers plans for five thoughtfully designed barn conversions amidst stunning countryside views. Each unit promises spacious living, with features such as open-plan layouts, multiple bedrooms, ensuite options, and private gardens—all served by existing access and designated parking.
Set in a peaceful area between Garway Hill and Orcop, this location balances the beauty of rural life with essential amenities nearby, while town centres in Monmouth and Hereford are conveniently within a 30-minute drive. Although requiring connection to mains water and private drainage, no significant structural changes are needed, presenting a straightforward path to transform these barns into desirable residences. The serene setting and development potential make this an enticing prospect for families, investors, or lifestyle buyers looking to create their dream homes—don’t miss out on this unique opportunity!
Plot for sale in Kentchurch, Hereford, Herefordshire, HR2 — £230,000 • 1 bed • 1 bath • 3971 ft²
Barn conversion for sale in Ullingswick, Hereford, HR1 — £325,000 • 1 bed • 1 bath
Plot for sale in Little Pen-Y-Lan Barns, Pontrilas, Hereford, Herefordshire, HR2 — £450,000 • 1 bed • 1 bath • 5800 ft²
Land for sale in Barn Adjacent To New Tynnings, Acton Beauchamp, Worcester, Herefordshire, WR6 — £300,000 • 1 bed • 1 bath
Land for sale in Hereford, Herefordshire, County, HR3 — £495,000 • 1 bed • 1 bath • 6835 ft²
Barn conversion for sale in Middlewood, Dorstone, Hereford, HR3 — £100,000 • 1 bed • 1 bath














































