Spacious family home with modern systems and strong rural views.
- Recently built imposing 4-bed detached gated villa
- Ashley Anne kitchen with Contura log burner stove
- Air-source heat pump and underfloor heating ground floor
- Four bathrooms (two en-suite) and three versatile reception rooms
- Large enclosed gravel plot and double garage, easy maintenance
- Walking distance to Mulbuie Primary School; services in Muir of Ord
- Very slow broadband and average mobile signal — impacts home working
- Area shows high deprivation and council tax is quite expensive
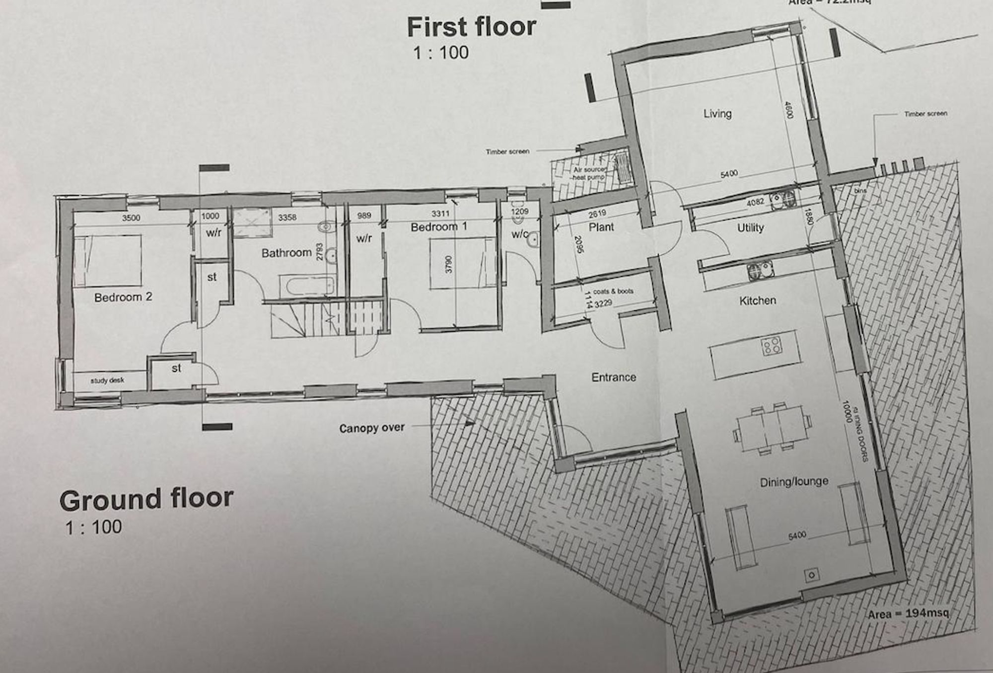
Set on a large enclosed plot in semi-rural Mulbuie, this recently built four-bedroom detached villa offers spacious family living with modern, energy-efficient systems. The Ashley Anne kitchen opens to a generous family room with a Contura log burner, while three reception rooms provide flexible space for a study, gym or playroom. Two en-suite bedrooms and four bathrooms suit a busy household.
Practical comfort is a strong point: an air-source heat pump, underfloor heating across the ground floor and a recirculation ventilation system reduce running costs and improve comfort; aluminium double-glazed windows are low maintenance. A wide gravel sweep and large double garage give abundant parking and easy outdoor upkeep. North views to Ben Wyvis and south to open fields add rural outlooks from a comfortable modern home.
Buyers should note material limits of the location. Broadband speeds are very slow and mobile signal is only average, which may affect home working or streaming. The wider area records high deprivation and local council tax is described as quite expensive. The plot is mostly gravel which reduces gardening work but limits lawn or softer landscaping without additional expenditure.
This property suits families seeking a contemporary, energy-efficient home with room for home working or hobbies and easy access to Mulbuie Primary School. Commuting to Inverness or Dingwall is feasible, but anyone reliant on fast internet or strong mobile reception should factor in connectivity constraints.
4 bedroom detached house for sale in Killen, Avoch, IV9 — £530,000 • 4 bed • 4 bath • 3525 ft²
5 bedroom detached house for sale in Bracadale, Millbank Road, Munlochy, IV8 — £375,000 • 5 bed • 2 bath
3 bedroom detached house for sale in Balbair, Black Isle, IV7 — £320,000 • 3 bed • 1 bath • 1506 ft²
5 bedroom detached house for sale in Curin, Muir Of Ord, IV6 7QG, IV6 — £600,000 • 5 bed • 4 bath • 2013 ft²
5 bedroom detached house for sale in The Hutt, Drynie Park, Mulbuie, Muir Of Ord, Highland, IV6 — £700,000 • 5 bed • 4 bath • 3221 ft²
4 bedroom detached house for sale in FoxHole, Beauly, IV4 — £450,000 • 4 bed • 1 bath • 2612 ft²










































































































































































































































