Move-in ready two-bedroom extended semi with conservatory, loft room and driveway..
Freehold extended semi-detached home on corner plot
Two double bedrooms plus boarded loft room with Velux
Conservatory with electric heating for year-round use
Sleek high-gloss kitchen with side access and good storage
Landscaped garden with decked entertaining area and driveway
EPC C, mains gas boiler, double glazing (installation date unknown)
Small plot and modest overall footprint for compact living
Area records above-average crime and high local deprivation
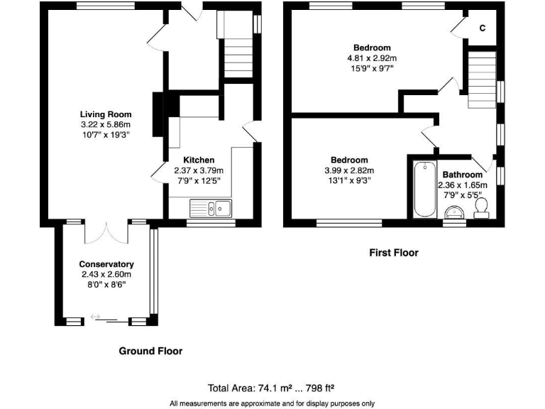
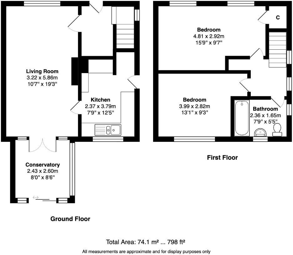
This extended two-bedroom semi-detached house on a corner plot offers a ready-to-move-into option for first-time buyers or couples. The ground floor has a generous living room, sleek high-gloss kitchen with side access, and a conservatory with electric heating that works year-round. Upstairs are two double bedrooms and a boarded loft room with a Velux window, providing flexible space for storage, a home office or occasional guest use.
Outside there’s a landscaped corner garden with a decked entertaining area, driveway parking and a brick-built outbuilding. Practical features include mains gas central heating (boiler and radiators), double glazing (install date unknown) and an EPC rating of C. The property is freehold and subject to very low council tax (Band A).
Location is convenient for local schools, parks, shops and frequent public transport links into Leeds, making day-to-day life straightforward. That convenience is balanced by local social challenges: the immediate area records above-average crime and is classified as very deprived, which may concern some buyers or affect longer-term resale perceptions.
Overall this is a compact, well-presented suburban home offering immediate occupation and scope to personalise. Its size and small plot make it particularly well suited to first-time buyers, couples or buy-to-let investors looking for a straightforward, low-maintenance property close to amenities.
3 bedroom semi-detached house for sale in Summerfield Avenue, Bramley, , LS13 1AT, LS13 — £260,000 • 3 bed • 1 bath • 835 ft²
2 bedroom semi-detached house for sale in Hill Court Drive, Leeds, West Yorkshire, LS13 — £210,000 • 2 bed • 1 bath • 563 ft²
3 bedroom semi-detached house for sale in St. Catherines Green, Leeds, West Yorkshire, LS13 — £225,000 • 3 bed • 1 bath • 896 ft²
3 bedroom semi-detached house for sale in Whitecote Rise, Leeds, West Yorkshire, LS13 — £250,000 • 3 bed • 1 bath • 866 ft²
2 bedroom semi-detached house for sale in Broadlea Avenue, Bramley, Leeds, LS13 — £185,000 • 2 bed • 1 bath • 668 ft²
3 bedroom semi-detached house for sale in Fairfield Mount, Leeds, West Yorkshire, LS13 — £185,000 • 3 bed • 1 bath • 818 ft²






































































































