**Standout Features:**
- Prime location on Edward Street, Brighton, in a vibrant Kemptown neighborhood with proximity to the seafront.
- Freehold sale at offers around £450,000, ideal for investment or development.
- Spacious layout across three levels: ground floor bar area, first-floor accommodation (4 bedrooms, kitchen & bathroom), and a basement cellar.
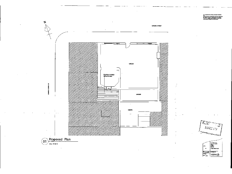
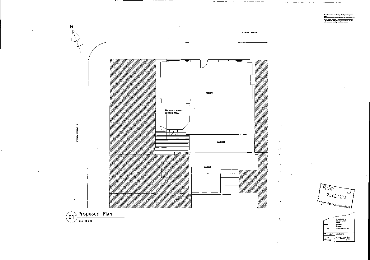
- Includes a garden area for potential outdoor use, enhancing its appeal.
- Development potential (subject to necessary consents) to convert into residential or mixed-use applications.
**Summary:**
This distinctive freehold retail property at 116-118 Edward Street offers a unique investment opportunity in a rapidly regenerating area close to Brighton's picturesque seafront. Previously a public house, the building spans 1,583 sq ft with significant space for creative redevelopment. The ground floor features a vibrant bar area, while the upper floors hold potential for residential living, complemented by a garden to the rear—ideal for outdoor dining or leisure.
Nestled within a cosmopolitan neighborhood, the property is surrounded by an array of amenities and excellent transport links, making it a highly attractive prospect for investors ready to capitalize on its mixed-use potential. While the property requires modernization, its charming Victorian facade and sizable floor plan present an exceptional canvas for your vision. This rare opportunity is sure to attract keen buyers—don't miss your chance to transform this space into a lucrative venture!
Commercial property for sale in St. James's Street, Brighton, BN2 — £575,000 • 4 bed • 1 bath • 1476 ft²
High street retail property for sale in 110 St. James's Street, Brighton BN2 1TH, BN2 — £320,000 • 1 bed • 1 bath • 716 ft²
Pub for sale in S-520071 - Tiki Hut, 2-3 High Street, Brighton BN2 1RP, BN2 — £525,000 • 1 bed • 1 bath • 10356 ft²
High street retail property for sale in 79 - 80 Western Road, Hove, BN3 2JQ, BN3 — £900,000 • 1 bed • 1 bath • 2844 ft²
3 bedroom house for sale in Queens Road, Brighton, BN1 — £600,000 • 3 bed • 1 bath • 1487 ft²
Commercial development for sale in 15 Ship Street, Brighton BN1 1AD, BN1 — £1,300,000 • 1 bed • 1 bath • 4235 ft²


















