CM15 0HB - 4 bedroom semidetached house for sale in Hook End Road, Hoo…

View on Property Piper

4 bedroom semi-detached house for sale in Hook End Road, Hook End, CM15

Summary - Rowan House, Hook End Road, Hook End CM15 0HB

4 bed 1 bath Semi-Detached

**Standout Features:**
- Four spacious bedrooms
- Open-plan lounge and dining area with abundant natural light
- Good-sized, mature rear garden with patio area
- Ample off-street parking on a private driveway
- Chain-free sale, offering immediate occupancy
- Located in a serene semi-rural village setting

**Potential Concerns:**
- The property may require minor updates, typical for homes of its age (1967-1975)
- No insulation assumed in cavity walls could affect energy efficiency
- Limited outdoor views from upper-level rooms

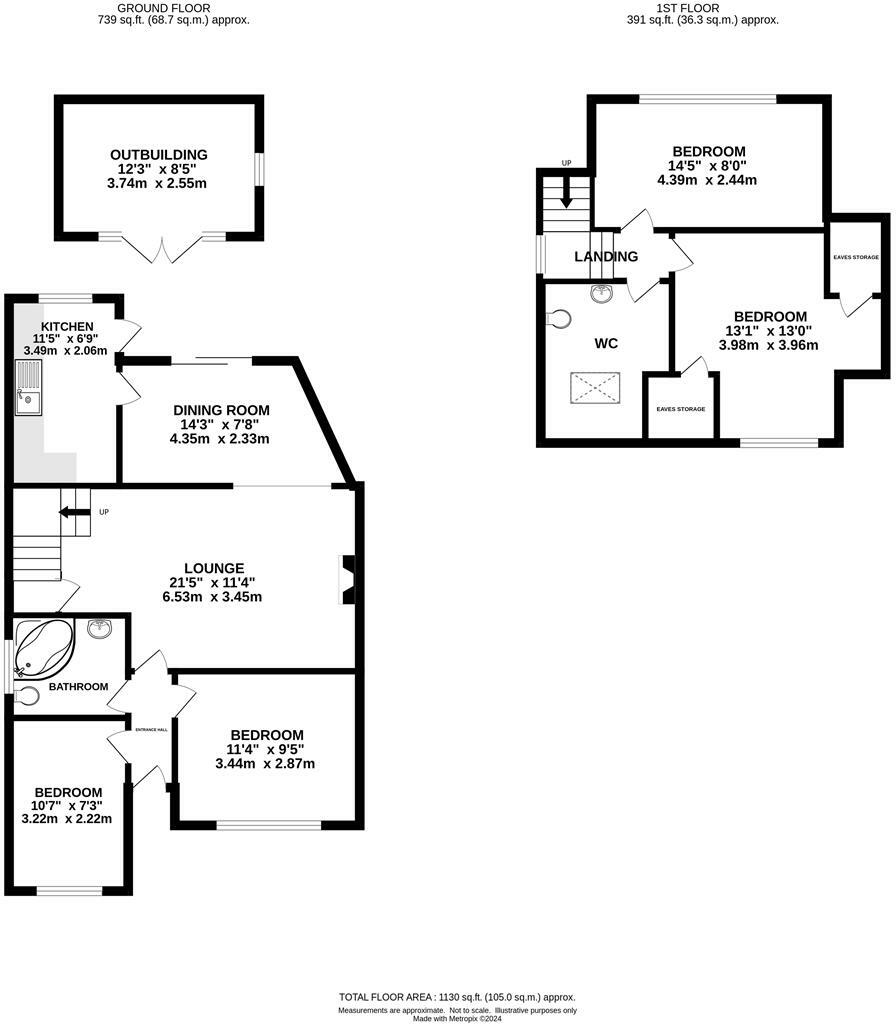
Discover this charming semi-detached, chalet-style family home, perfectly positioned in the sought-after village of Hook End. Boasting four well-proportioned bedrooms, this residence provides a cozy atmosphere ideal for family living. The heart of the home features a bright open-plan lounge and dining area with sliding patio doors that seamlessly connect to a mature rear garden—perfect for entertaining or enjoying quiet afternoons outdoors.

With a spacious kitchen and modern conveniences, this property offers renovation potential to customize it to your taste. The downstairs hosts two bedrooms and a family bathroom, while the first floor reveals two additional double bedrooms with generous storage options. Enjoy peace of mind with no onward chain, ensuring a smooth transition into your new home.

This location benefits from excellent schools and essential amenities nearby, making it perfect for families seeking a balance of countryside tranquility and easy access to urban conveniences. With the property market on the move, this gem won't last long—schedule your viewing today and make this house your forever home!

Property Details

Brochure Descriptions

Image Descriptions

Floorplan Description

Rooms

Textual Property Features

Detected Visual Features

EPC Details

Nearby Schools

Nearest Bars And Restaurants

,,,,}

Nearest General Shops

,,}

Nearest Grocery shops

,,}

Nearest Supermarkets

,,}

Nearest Religious buildings

,,}

Nearest Medical buildings

,,,}

Nearest Airports

,}

Nearest Leisure Facilities

,,,,}

Nearest Tourist attractions

,,}

Nearest Train stations

,,,,}

Nearest Bus stations and stops

,,,,}

Nearest Hotels

,,}

Tags

Local Market Stats

Similar Properties

Meta

High Res Images

Compatible Images

Low res Images

Thumbnails

Raw Images

High Res Floorplan Images

Compatible Floorplan Images

Low res Floorplan Images

FloorplanImages Thumbnail

Raw Floorplan Images