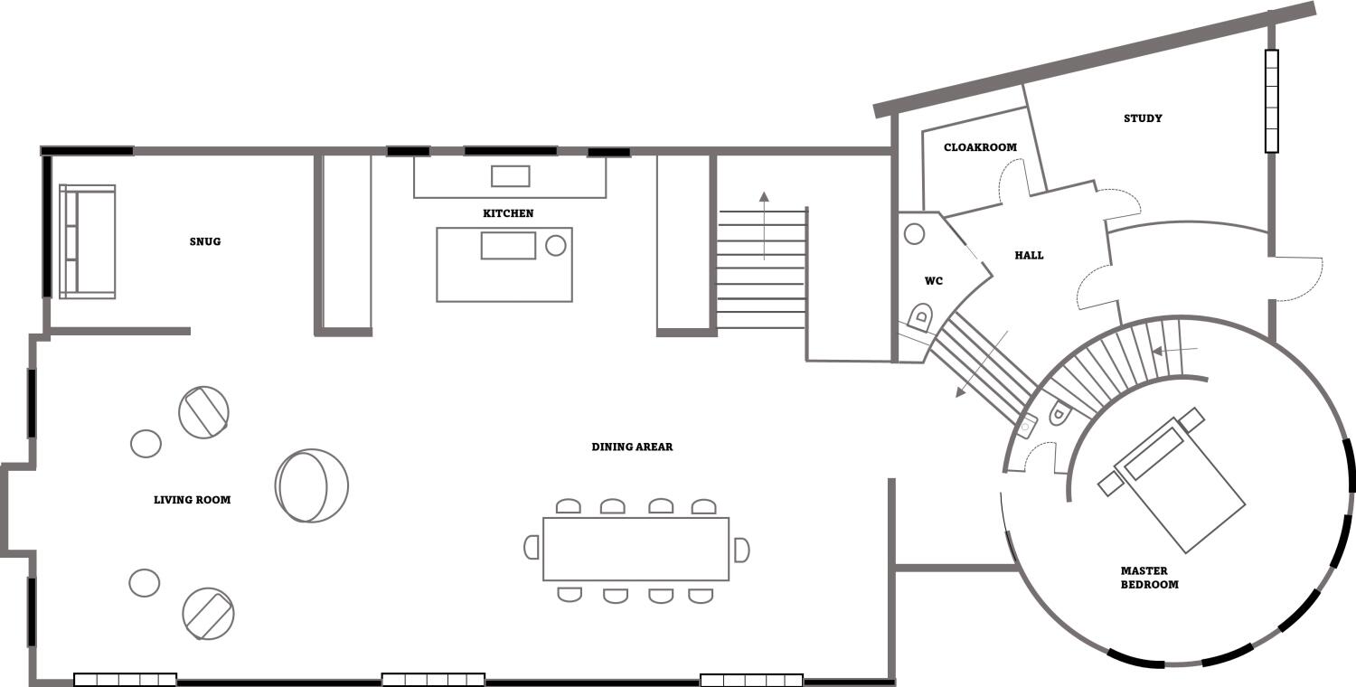
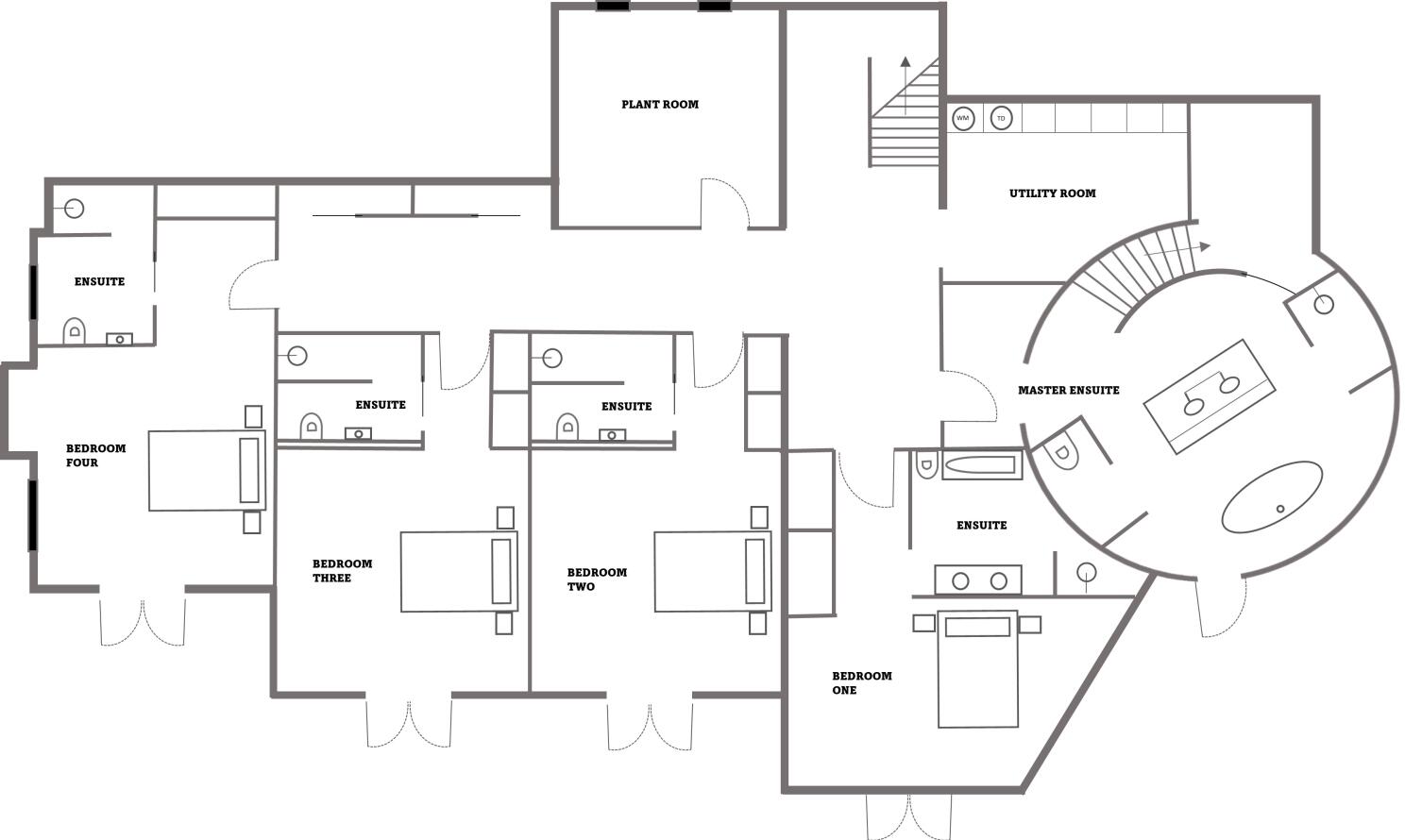
**Key Features:**
- Exceptional elevated views of Fowey and Polruan
- Granted planning permission for a modern detached family home (PA23/03780)
- Included mooring rights on Bodinnick foreshore for a boat or dinghy
- Large plot size ideal for gardening or future expansion
- Unique turret-style Master suite offering panoramic vistas
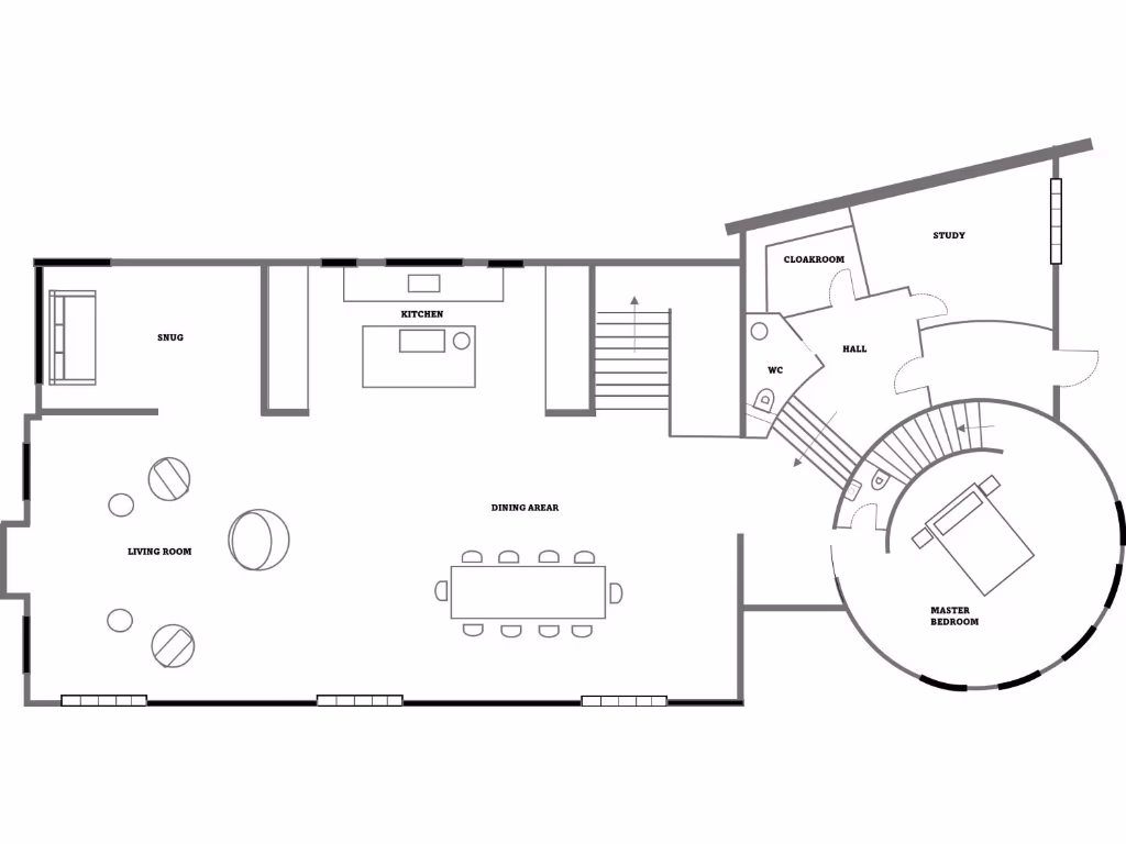
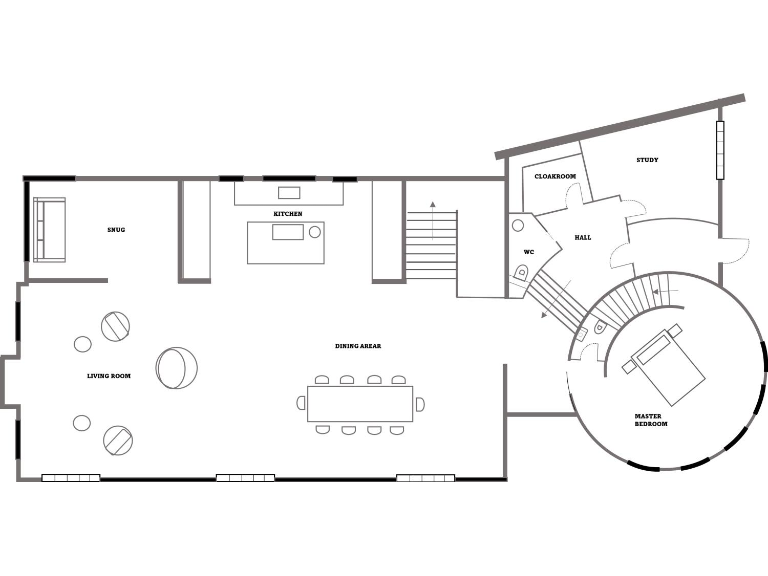
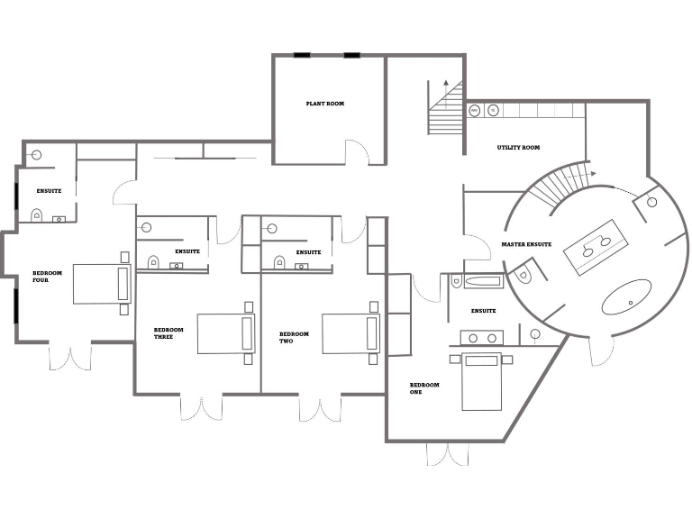
This expansive plot in the picturesque hamlet of Bodinnick, Fowey presents a rare opportunity to build a remarkable family home with breathtaking views of the Fowey River and neighboring villages. With planning permission already secured for a sleek, modern design, the proposed dwelling promises versatile living spaces and well-appointed en-suite bedrooms, including a two-story turret-style Master suite for an elevated living experience. The property also benefits from its own mooring, ideal for those looking to enjoy a waterborne lifestyle.
While the scenic location offers tranquility and natural beauty, it is also positioned in an area with average crime rates and slower broadband speeds, which may be considerations for potential buyers. This plot stands out as an investment in family comfort and potential, allowing new owners to craft a bespoke retreat with the flexibility for future enhancements.
Seize this unique opportunity in this secluded and charming community, where serene living meets potential for growth, making it perfect for families and investors alike. Don't miss out on this chance to develop your dream home in a coveted Cornish location!
Land for sale in Water Lane, PL23 — £350,000 • 5 bed • 6 bath • 2874 ft²
3 bedroom detached house for sale in Bodinnick, Fowey, PL23 — £620,000 • 3 bed • 1 bath • 1543 ft²
Plot for sale in Looe, Cornwall, PL13 2DT - Prime Potential Building Plot With Stunning Views And Aspect , PL13 — £225,000 • 1 bed • 1 bath
5 bedroom detached house for sale in Fowey, Cornwall, PL23 — £900,000 • 5 bed • 3 bath • 1839 ft²
Plot for sale in Wadebridge, PL27 6AN, PL27 — £99,950 • 1 bed • 1 bath
Land for sale in Golant, Fowey, PL23 — £65,000 • 1 bed • 1 bath • 1915 ft²


















































