Well-located three-bed home with extended kitchen, garden and driveway — ideal first-time purchase.
- Three bedrooms: two doubles plus small third room for office or nursery
- Extended kitchen–breakfast room with French doors to garden
- Bay-fronted lounge providing generous natural light
- Off-street driveway parking and side lean-to storage
- Generous rear garden despite small overall plot size
- Single family bathroom only; one shower over bath
- Constructed 1930–1949 with assumed no wall insulation
- Located in an area of higher deprivation; check local factors
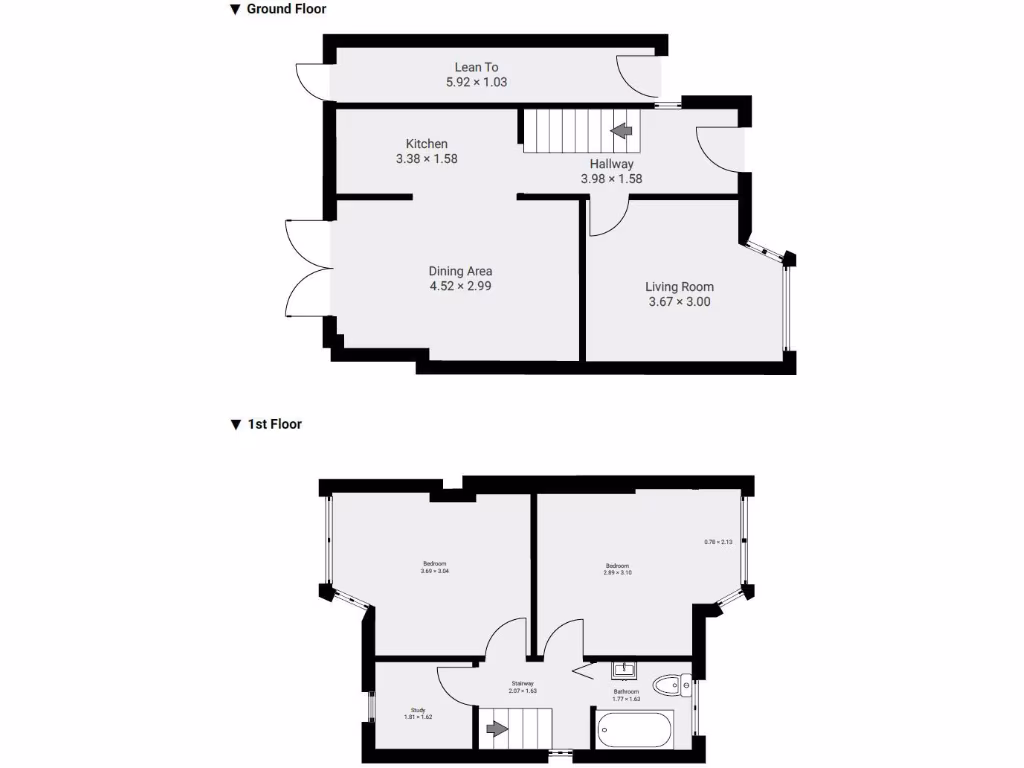
This three-bedroom semi-detached house on Julia Avenue offers an accessible step onto the property ladder in Pype Hayes. The bay-fronted lounge and extended kitchen–breakfast room create comfortable day-to-day living space, while French doors connect the kitchen to a generous rear garden for outdoor use.
Practical strengths include off-street driveway parking, mains gas central heating with boiler and radiators, double glazing, and freehold tenure. The layout suits first-time buyers or young families: two double bedrooms plus a smaller third room ideal as a nursery, home office, or dressing room. Local amenities, good bus links and several nearby schools rated Good make the location convenient.
Buyers should be aware of a few material points. The property is modest in overall size (approx. 773 sq ft) and sits on a small plot. Constructed around 1930–1949 with solid brick walls that are assumed uninsulated, the house may benefit from thermal upgrades. There is a single family bathroom and the wider local area shows higher deprivation levels, which prospective buyers may want to review.
Overall, this freehold home provides a ready-to-live-in base with scope to modernise and add value through insulation and aesthetic improvements. It will suit first-time buyers or young families seeking a practical, well-located home with garden and parking, mindful of its compact footprint and upgrade potential.
3 bedroom semi-detached house for sale in Cranwell Grove, BIRMINGHAM, West Midlands, B24 — £260,000 • 3 bed • 2 bath • 1008 ft²
3 bedroom semi-detached house for sale in Egerton Road, Pype Hayes, Birmingham, B24 — £240,000 • 3 bed • 2 bath
3 bedroom semi-detached house for sale in Dunvegan Road, BIRMINGHAM, B24 — £240,000 • 3 bed • 2 bath • 819 ft²
4 bedroom end of terrace house for sale in Pype Hayes Road, Birmingham, B24 — £325,000 • 4 bed • 1 bath • 947 ft²
3 bedroom semi-detached house for sale in Varley Road, Pype Hayes, Birmingham, B24 — £260,000 • 3 bed • 1 bath • 625 ft²
3 bedroom semi-detached house for sale in Pype Hayes Road, Erdington, Birmingham, B24 — £300,000 • 3 bed • 1 bath • 1228 ft²


































































