TN3 9TB - 2 bedroom detached bungalow for sale in Ashurst Road, Ashur…

View on Property Piper

2 bedroom detached bungalow for sale in Ashurst Road, Ashurst, Tunbridge Wells, TN3

Summary - Ashurst Road, Ashurst, Tunbridge Wells TN3 9TB

2 bed 1 bath Detached Bungalow

Newly renovated two-bedroom bungalow in peaceful Ashurst with vaulted living and parking.
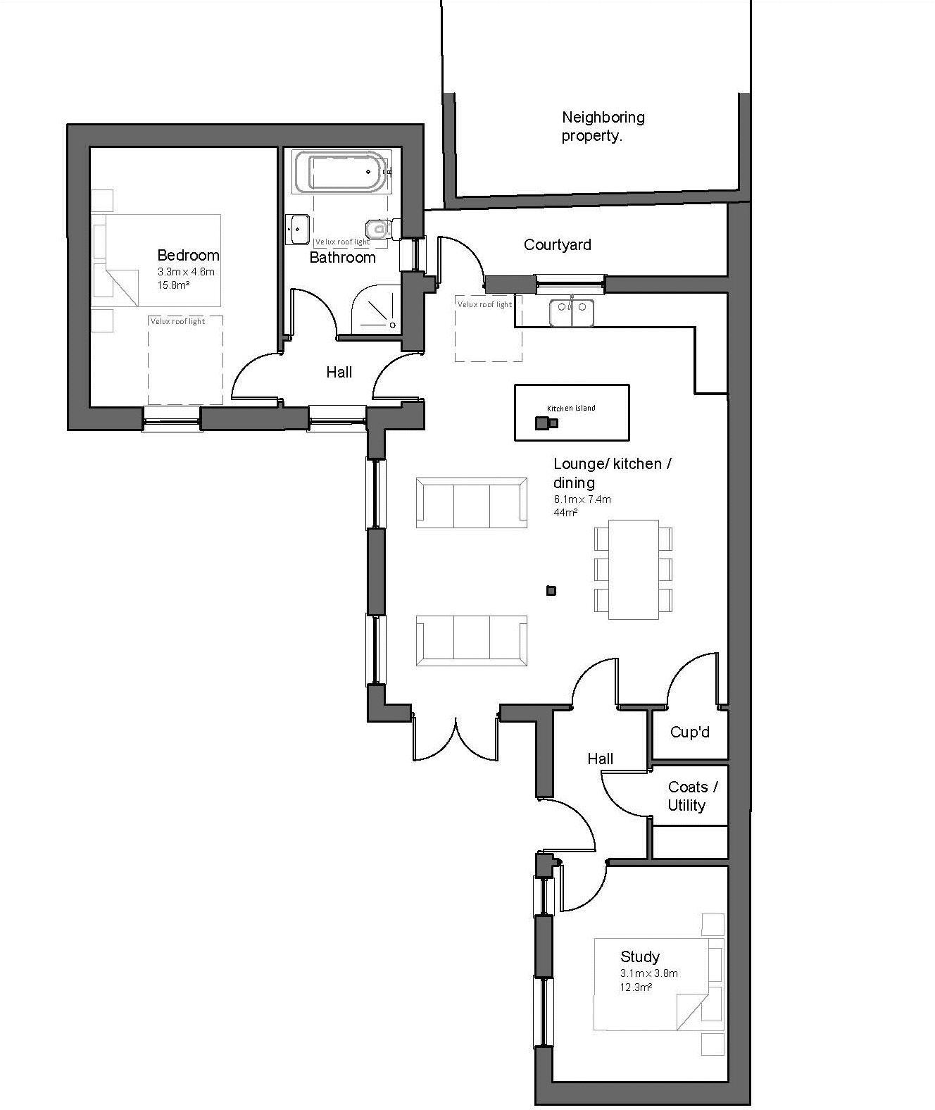
- Detached single-storey bungalow, 1,130 sq.ft
- Vaulted living room with wood-burner and open-plan kitchen
- Bespoke kitchen with quartz worktops and integrated appliances
- Two double bedrooms; one main bathroom plus separate shower room/WC
- Air-source heating and aluminium triple glazing for efficiency
- Two paved courtyard areas; south-facing seating area
- Gated entrance and parking for 2–3 cars on a very large plot
- Some kitchen lighting fixtures require completion; limited bedroom count
A recently renovated detached bungalow tucked away in an attractive rural setting in Ashurst, Tunbridge Wells. The single-storey layout centres on a vaulted living space with a wood-burner and an open-plan kitchen finished with quartz worktops and integrated appliances — a comfortable, low-maintenance home designed for easy living.

The property offers two double bedrooms, a generous bathroom with separate shower cubicle plus an additional separate shower room/WC, aluminium triple glazing and air-source central heating for efficient year-round comfort. Two paved courtyard areas, including a south-facing seating space, provide private outdoor living without extensive garden upkeep.

Practical benefits include gated entrance and off-street parking for two to three cars on a very large plot. The dwelling was created by refurbishing and extending agricultural buildings, combining brickwork and timber cladding under a new tiled roof — characterful yet modern in specification.

A straightforward choice for downsizers or anyone seeking a low-maintenance rural home with good local schools nearby and strong broadband/mobile signals. Note: some kitchen lighting fixtures appear unfinished and the single-storey, two-bedroom layout limits expansion if you need more bedrooms or extensive garden space.

Property Details

Image Descriptions

Floorplan Description

Rooms

Textual Property Features

Target Audience

AI Tags

Detected Visual Features

Nearby Schools

Nearest Bars And Restaurants

,,,,}

Nearest General Shops

,,}

Nearest Grocery shops

,,}

Nearest Supermarkets

,,}

Nearest Religious buildings

,,}

Nearest Medical buildings

,,,}

Nearest Airports

}

Nearest Leisure Facilities

,,,,}

Nearest Tourist attractions

,,}

Nearest Train stations

,,,,}

Nearest Bus stations and stops

,,,,}

Nearest Hotels

,,}

Tags

Local Market Stats

AirBnB Data

Similar Properties

Meta

High Res Images

Compatible Images

Low res Images

Thumbnails

Raw Images

High Res Floorplan Images

Compatible Floorplan Images

Low res Floorplan Images

FloorplanImages Thumbnail

Raw Floorplan Images