Well-proportioned garden and driveway close to top-rated schools.
Three bedrooms: two good doubles and one single
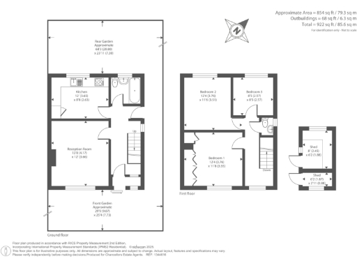
A practical three-bedroom semi-detached home on the south side of Banbury, suited to growing families seeking convenience and outdoor space. The property offers two good double bedrooms, a single bedroom, living room with fireplace, and a sizeable rear garden ideal for play and summer dining. Off-street driveway parking and recent double glazing add everyday convenience and energy efficiency.
Located in a popular Timms estate spot, the house sits close to a supermarket, regular bus services and a cluster of well-rated primary and secondary schools (including several rated Good). The plot is a decent size for the area and the home benefits from mains gas central heating and a filled cavity wall construction, giving solid fundamentals for comfortable family living.
The home is average-sized at around 922 sq ft and dates from the late 1970s/early 1980s, so while it has been kept well it reflects its era in layout and finishes. Council tax is affordable and there is no flooding risk; the neighbourhood records low crime and fast broadband, which supports remote working and family needs. Buyers seeking a fully modernised finish should allow a modest budget for cosmetic updates.
Overall this is a straightforward, well-located family home offering immediate occupancy or a sensible improvement project to increase value. It will particularly suit buyers who prioritise school catchments, outdoor space and practical transport links on Banbury’s south side.
3 bedroom semi-detached house for sale in Bodicote, Banbury, Oxfordshire, OX15 — £350,000 • 3 bed • 3 bath • 1015 ft²
3 bedroom semi-detached house for sale in Banbury, Oxfordshire, OX16 — £280,000 • 3 bed • 1 bath • 893 ft²
2 bedroom semi-detached house for sale in Elmscote Road, Banbury, OX16 9EF, OX16 — £325,000 • 2 bed • 2 bath • 618 ft²
3 bedroom semi-detached house for sale in Wykham Place, Banbury, OX16 — £295,000 • 3 bed • 2 bath • 995 ft²
3 bedroom semi-detached house for sale in Boxhedge Road, Banbury, OX16 — £280,000 • 3 bed • 1 bath • 732 ft²
3 bedroom semi-detached house for sale in Edmunds Road, Banbury, OX16 — £290,000 • 3 bed • 1 bath • 829 ft²


















































































