Two-bedroom town cottage close to shops and schools.
Two double bedrooms with built-in storage
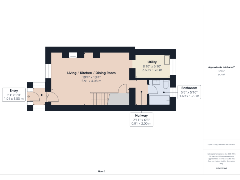
Open-plan kitchen/dining/living with wood-burning stove
Compact overall size — approximately 573 sq ft
Detached garage and garden, potential for two parking spaces
Solid brick walls likely without insulation (assumed)
Double glazing installed post-2002
Dual-fuel heating: boiler plus wood-burning stove
Located within walking distance of Holsworthy town centre
Set within the heart of Holsworthy, this well-presented two-bedroom end-terrace offers compact, modernised living ideal for first-time buyers. The open-plan ground floor creates a light social space with a wood-burning stove and practical utility and bathroom to the rear. Two double bedrooms upstairs and built-in storage suit comfortable everyday living.
Outside, a paved patio leads to a small principally lawned garden with mature hedge, plus a detached garage for storage. The rear layout and garden width suggest potential to create two off-road parking spaces, subject to planning and access. Period features blend with recent upgrades such as double glazing installed after 2002.
Buyers should note the property’s solid brick walls are likely uninsulated and the house is compact at around 573 sq ft — heating is via a dual-fuel boiler and wood-burning stove. The local area shows signs of economic deprivation and an average crime level; the neighbourhood has a notable Eastern European community mix. These factors may influence future resale or rental considerations.
This freehold home is conveniently a short walk from Holsworthy’s shops, schools and services, with good road links to the A30 and the North Cornwall coast. It represents an accessible entry point to the local market, with straightforward scope for cosmetic updates or modest energy-improvement works.
2 bedroom end of terrace house for sale in Belle Vue, Holsworthy, Devon, EX22 — £165,000 • 2 bed • 1 bath • 564 ft²
3 bedroom detached house for sale in Trewyn Road, Holsworthy, EX22 — £210,000 • 3 bed • 1 bath • 863 ft²
3 bedroom detached house for sale in Station Road, Holsworthy, Devon, EX22 — £180,000 • 3 bed • 1 bath • 517 ft²
3 bedroom terraced house for sale in St. Peters Road, Holsworthy, Devon, EX22 — £275,000 • 3 bed • 2 bath • 1068 ft²
3 bedroom end of terrace house for sale in Parsons Close, Holsworthy, Devon, EX22 — £265,000 • 3 bed • 1 bath • 744 ft²
3 bedroom terraced house for sale in Croft Road, Holsworthy, Devon, EX22 — £230,000 • 3 bed • 1 bath • 587 ft²


























































