Two-bedroom family house with sunny rear garden and quick access to transport.
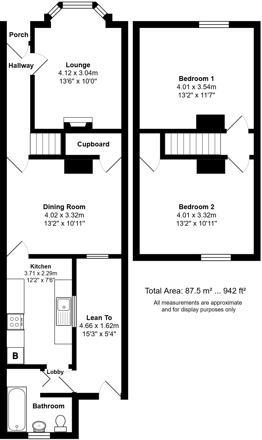
942 sq ft of living space over two floors
This Victorian mid-terrace offers 942 sq ft of flexible family living close to shops, schools and Fratton station. Two reception rooms and a bay-fronted lounge give comfortable day-to-day space, while two double bedrooms occupy the first floor. A south-facing paved garden provides sunlight and low-maintenance outdoor space.
The layout is traditional and practical: hallway, lounge, dining room, kitchen, bathroom and a useful lean-to with garden access. The property is double glazed, centrally heated by a gas boiler and sold freehold with no forward chain — attractive for buyers seeking a quick move or straightforward investment.
Buyers should note a single downstairs bathroom and a relatively small rear plot, which limits extension potential. The property dates from the early 20th century and cavity walls are shown as uninsulated (assumed), so buyers who prioritise high energy efficiency may wish to budget for wall insulation or other improvements.
Overall this home suits growing families or buyers seeking a centrally located starter or rental opportunity. Early viewing is recommended to appreciate the accommodation and central Southsea location.
2 bedroom terraced house for sale in Percy Road, Southsea, PO4 — £250,000 • 2 bed • 1 bath • 721 ft²
2 bedroom terraced house for sale in Talbot Road, Southsea, PO4 — £235,000 • 2 bed • 1 bath • 649 ft²
2 bedroom terraced house for sale in Boulton Road, Southsea, Hampshire, PO5 — £235,000 • 2 bed • 1 bath • 794 ft²
2 bedroom terraced house for sale in Sutherland Road, Southsea, Hampshire, PO4 — £240,000 • 2 bed • 1 bath • 555 ft²
2 bedroom terraced house for sale in Esslemont Road, Southsea, PO4 — £230,000 • 2 bed • 1 bath • 829 ft²
2 bedroom terraced house for sale in Esslemont Road, Southsea, PO4 — £240,000 • 2 bed • 1 bath • 691 ft²






































































































