Spacious period home with separate cottage and studio, ideal for multi-generational living.
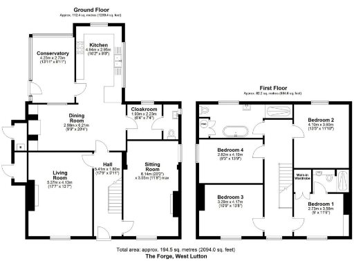
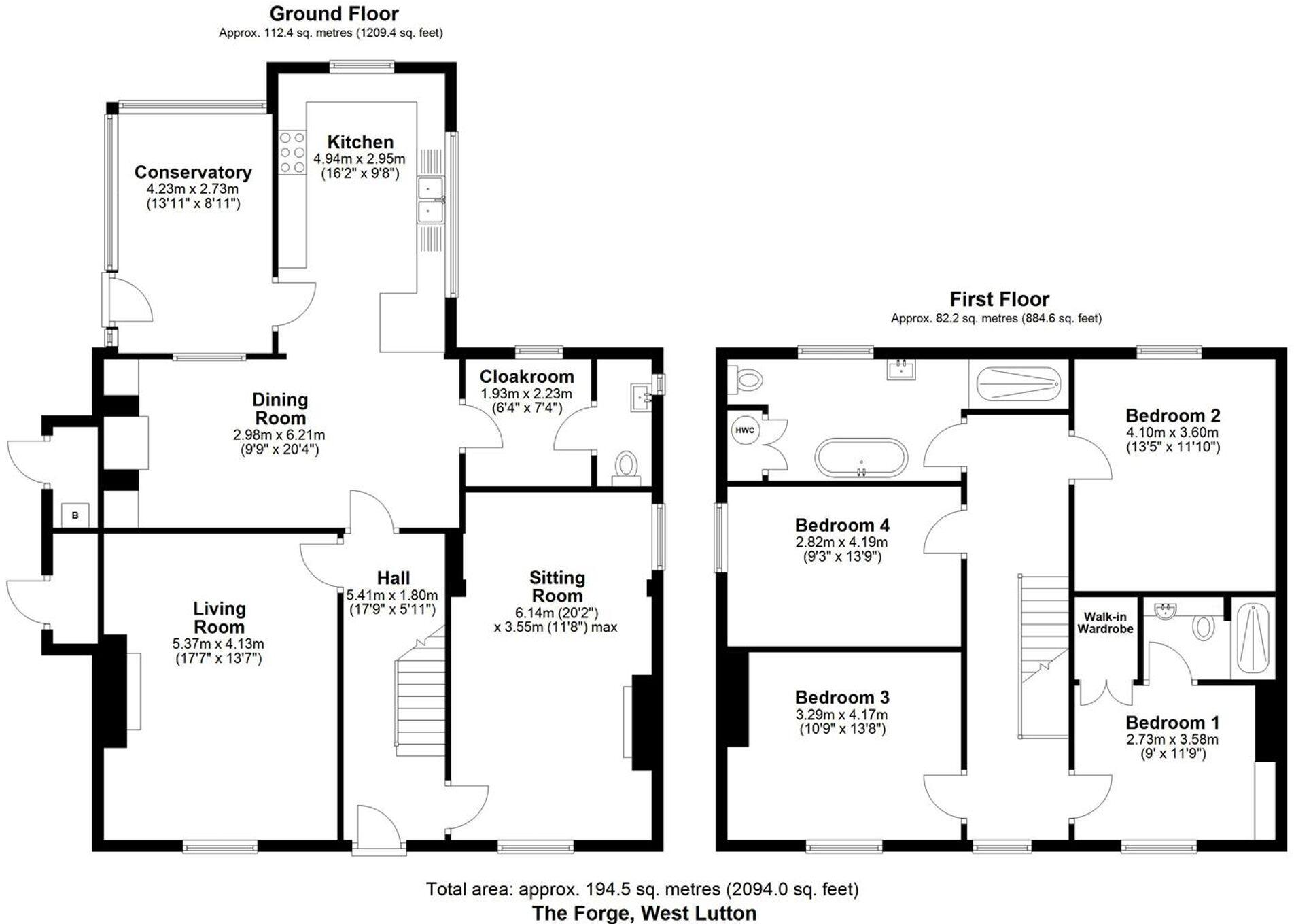
4-bedroom main house with townhouse-scale rooms and original Georgian features
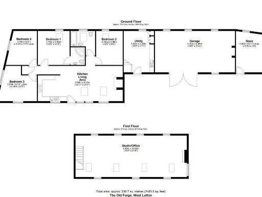
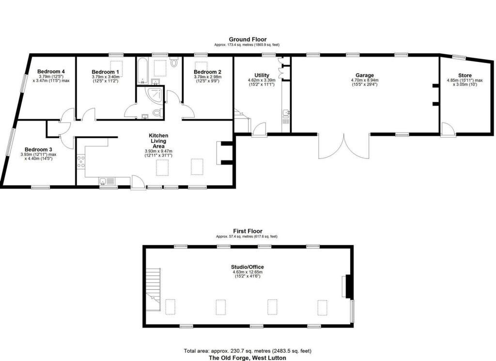
Separate 4-bedroom holiday cottage with underfloor heating and individual thermostats
First-floor studio/office with exposed beams and ample natural light
Large garden, limestone patio, greenhouse, summer house and shed
Spacious garage with electric door and driveway parking
Oil-fired boiler for main house; cottage uses underfloor heating
EPC rating E; medium local flood risk — impacts insurance and running costs
Council tax level described as expensive
A handsome period property set in a peaceful village setting, The Forge combines a substantial four-bedroom main house with a first-floor studio/office and a separate four-bedroom cottage (The Old Forge). The main house retains Georgian character — sash windows, exposed brick, oak floors and open fires — while the cottage has been sensitively renovated and has underfloor heating and thermostatic controls.
The layout suits multi-generational living or a combined home-and-income model: principal house, self-contained cottage used recently as a holiday let, and a bright studio ideal for a home office, gym or rental. Outside there is a generous garden, limestone patio, greenhouse, summer house, shed, driveway and an electric garage, all set beside open fields and the village church for a tranquil feel.
Practical points to know: heating to the main house is oil-fired with boiler and radiators; the cottage benefits from underfloor heating. The property’s EPC is E. There is a medium flood risk for the area and council tax is described as expensive. These factors should be weighed alongside the considerable size and flexible accommodation when considering running costs and insurance.
Overall, this is a rare, large village property offering flexible living arrangements, strong holiday-let potential and classic period charm. It will particularly suit families wanting separate living wings, buyers seeking dual income options, or those wanting a spacious rural retreat.
3 bedroom semi-detached house for sale in Maple Cottage, Duggleby, Malton, YO17 8BN, YO17 — £300,000 • 3 bed • 1 bath • 1039 ft²
4 bedroom detached house for sale in Glencoe Main Street, Bainton, Driffield, YO25 9NE, YO25 — £599,950 • 4 bed • 2 bath • 1580 ft²
4 bedroom house for sale in Melbourne, York, North Yorkshire, YO42 4QJ, YO42 — £543,000 • 4 bed • 1 bath • 1665 ft²
6 bedroom detached house for sale in Folkton, Scarborough, YO11 — £450,000 • 6 bed • 3 bath • 2058 ft²
4 bedroom detached house for sale in The Lane, Gate Helmsley, York, YO41 — £800,000 • 4 bed • 3 bath • 3116 ft²
6 bedroom detached house for sale in Fimber, Driffield, YO25 — £760,000 • 6 bed • 3 bath • 2800 ft²














































































































































































































































































































