SE6 1XD - 3 bed victorian end terrace home in Lewisham East, SE6 1XD

View on Property Piper

3 bedroom end of terrace house for sale in Sandhurst Road, London, SE6

Summary - 138, SANDHURST ROAD, LONDON SE6 1XD

3 bed 1 bath End of Terrace

Chain-free three-bed with south-facing garden, ideal for commuters and young families..
Chain-free three-bedroom Victorian end terrace
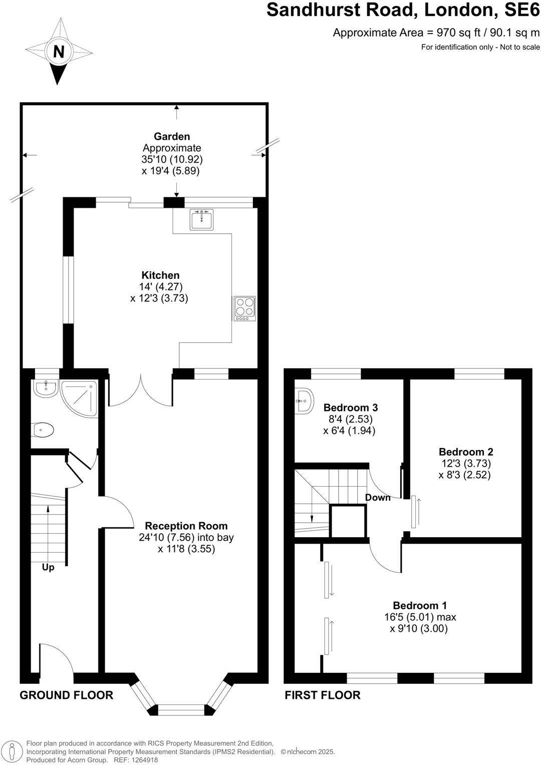
A bright Victorian end-of-terrace with three bedrooms, offered chain-free and ready for a new family. The house retains period character—bay window, high ceilings and mouldings—while a rear extension creates a spacious kitchen-diner ideal for everyday family life and informal entertaining.

Upstairs are three well-proportioned bedrooms and a modern shower room; the property totals about 970 sq ft and sits on a small plot with a paved, south-facing rear garden that catches afternoon sun. Double glazing and a mains-gas boiler provide practical comfort, and local schools rated Good–Outstanding suit young families.

Practical drawbacks are clear: the home shows signs of dated finishes (carpets and some rooms needing modernisation) and the original solid-brick walls are assumed uninsulated, which may affect energy efficiency. The plot and front garden are small and the area records above-average crime, so consider security and potential insulation or refurbishment costs.

Overall this is a sensible purchase for buyers wanting period character, transport links and a sunny rear garden without a chain. It suits families seeking a commuter-friendly base with scope to modernise and add value over time.

Property Details

Image Descriptions

Rooms

Textual Property Features

Target Audience

AI Tags

Detected Visual Features

EPC Details

Nearby Schools

Nearest Bars And Restaurants

,,,,}

Nearest General Shops

,,}

Nearest Grocery shops

,,}

Nearest Supermarkets

,,}

Nearest Religious buildings

,,}

Nearest Medical buildings

,,,}

Nearest Airports

,,}

Nearest Leisure Facilities

,,,,}

Nearest Tourist attractions

,,}

Nearest Train stations

,,,,}

Nearest Bus stations and stops

,,,,}

Nearest Hotels

,,}

Tags

Local Market Stats

AirBnB Data

Similar Properties

Meta

High Res Images

Compatible Images

Low res Images

Thumbnails

Raw Images

High Res Floorplan Images

Compatible Floorplan Images

Low res Floorplan Images

FloorplanImages Thumbnail

Raw Floorplan Images