Chain-free three-bedroom with garage, garden and clear extension potential.
No upper chain for quicker completion
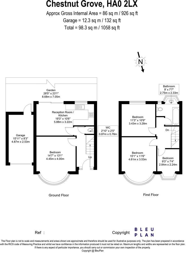
Garage with private driveway for off-street parking
South-facing rear garden, modest in size
Potential to extend rear and loft, planning required
Single family bathroom only; one downstairs WC
Requires cosmetic updating and modernisation throughout
Freehold tenure; approximately 926 sq ft overall
Good access to Piccadilly Line stations and local schools
This three-bedroom, bay-fronted semi sits on Chestnut Grove in Sudbury and is offered freehold with no upper chain, so a quick move is possible for a motivated buyer. The property retains 1930s Tudor Revival character externally and includes a garage, private driveway and a south-facing rear garden, providing immediate practical benefits for family life.
Internally the house provides a comfortable footprint across two storeys (approximately 926 sq ft) with a reception room, kitchen-dining space, downstairs WC and a single family bathroom. The accommodation will suit buyers seeking a liveable family home now, with clear scope to modernise and personalise the interiors to contemporary tastes.
Value can be unlocked by extending to the rear and converting the loft, subject to obtaining the necessary planning permission. The location is well served by Sudbury Hill and Sudbury Town stations (Piccadilly Line) and a range of primary and secondary schools nearby, making the home convenient for commuting and family life.
Buyers should note the property will benefit from cosmetic updating throughout and the plot is modest, particularly at the front. Planning approvals are not included and any extension or loft conversion will require formal applications. Overall this is a straightforward, chain-free family home with good extension potential in a well-connected suburban location.
4 bedroom semi-detached house for sale in Chestnut Grove, Wembley, HA0 — £675,000 • 4 bed • 1 bath • 1064 ft²
3 bedroom end of terrace house for sale in Sudbury Crescent, Wembley, HA0 — £475,000 • 3 bed • 1 bath • 908 ft²
3 bedroom semi-detached house for sale in Medway Gardens, Wembley, Middlesex HA0 — £625,000 • 3 bed • 1 bath • 1016 ft²
2 bedroom semi-detached house for sale in Charterhouse Avenue, Wembley, HA0 — £525,000 • 2 bed • 1 bath • 893 ft²
3 bedroom semi-detached house for sale in Sudbury Court Road, Harrow, HA1 — £700,000 • 3 bed • 1 bath • 1145 ft²
3 bedroom semi-detached house for sale in Sudbury Avenue, Wembley, HA0 — £615,000 • 3 bed • 1 bath • 1128 ft²










































