Chain-free three-bed terrace with south garden and scope to add value.
Chain free — ready for a quicker sale or purchase
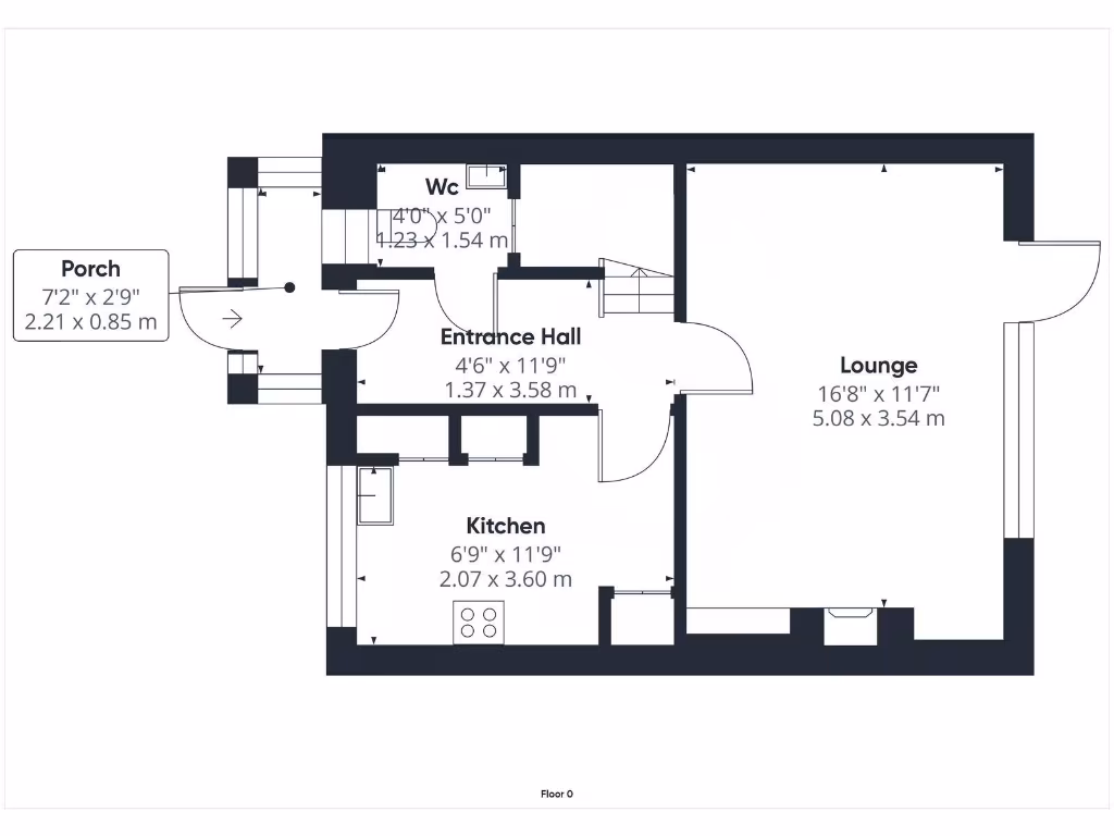
Quietly tucked on Old Shoreham Road, this three-bedroom mid-terraced home is a straightforward entry into Southwick living. It offers a spacious south-facing lounge and garden that fill the house with light, plus a generous kitchen and useful ground-floor cloakroom. The property is chain-free, making a quicker move possible for buyers wanting to settle or let out without delay.
Built in the mid-20th century and still showing period simplicity, the house is structurally sound with filled cavity walls and double glazing already installed. However, the interior would benefit from updating to reflect modern tastes—there’s clear scope for improvement, from aesthetic refreshes to kitchen and bathroom modernisation. This creates opportunity to add value rather than hide defects.
Positioned within Shoreham Academy’s catchment and close to Southwick Square, local shops, transport links and good schools, the location suits first-time buyers and buy-to-let investors. The small but sunny south-facing rear garden and decent room sizes mean easy everyday living and rental appeal. Inspection is advised to assess cosmetic and upgrade potential.
Note the practical details: single shower room, fitted double glazing predating 2002, and mains gas boiler with radiator heating. These are functional but indicate likely near-term maintenance or improvement expenses for buyers seeking fully modern systems.
3 bedroom terraced house for sale in Old Shoreham Road, Southwick, Brighton, BN42 — £325,000 • 3 bed • 1 bath • 1222 ft²
3 bedroom terraced house for sale in Cross Road, Southwick, BN42 — £350,000 • 3 bed • 1 bath • 971 ft²
3 bedroom terraced house for sale in Amelia Close, Southwick, Brighton, BN42 — £425,000 • 3 bed • 2 bath • 958 ft²
3 bedroom semi-detached house for sale in Orchard Close, Southwick, BN42 — £450,000 • 3 bed • 1 bath • 934 ft²
3 bedroom terraced house for sale in St. Aubyns Road, Fishersgate, Portslade, Brighton, BN41 — £300,000 • 3 bed • 1 bath • 765 ft²
3 bedroom terraced house for sale in The Gardens, Southwick, BN42 — £275,000 • 3 bed • 1 bath • 1427 ft²


















































