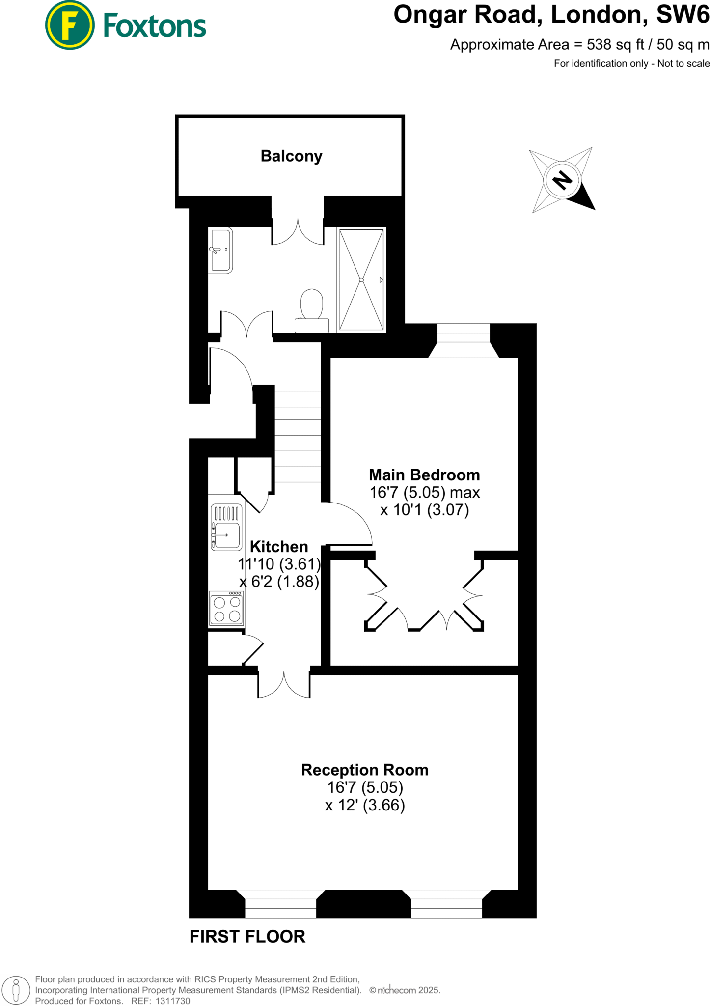
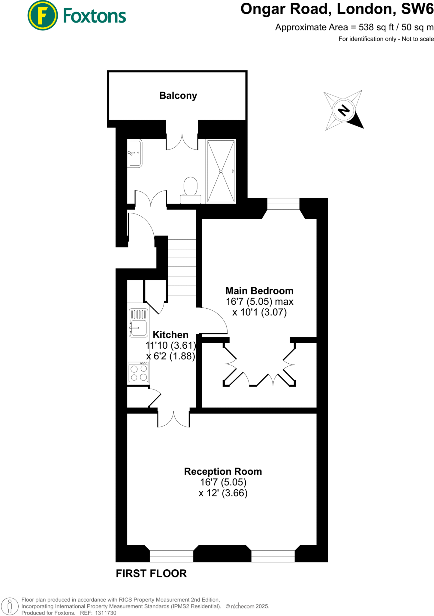
Spacious first‑floor flat with balcony and upward development potential in Fulham.
- Bright large reception room with high Victorian ceiling and bay window
- Generous double bedroom with ample built-in storage
- Private balcony overlooking quiet residential street
- Well-equipped modern kitchen with built-in appliances
- Share of freehold; approximately 538 sq ft overall
- Potential to add a full additional floor, STPP
- Solid brick Victorian walls; likely little insulation, may need upgrading
- Local area shows deprivation index; crime average
Set on a quiet residential street in SW6, this one‑bedroom period flat sits within a Victorian conversion and offers a bright reception room, generous bedroom and a private balcony. The apartment feels spacious for its size and benefits from a well‑equipped, modern kitchen and useful built‑in storage.
The property is sold as a share of freehold and spans about 538 sq ft, making it a practical purchase for a first‑time buyer or investor looking for central Fulham living. There is clear development potential: the building could be extended upwards to add a full additional floor, subject to planning permission (STPP).
Buyers should note the building’s age and solid‑brick construction (pre‑1900), which likely means limited wall insulation and future improvement works to modernise thermal performance. The surrounding area scores as deprived in local indices, although it benefits from excellent broadband and mobile signal, good local transport links and several highly regarded schools nearby.
Overall this flat offers immediate comfortable living, honest scope for value‑adding renovation or extension, and easy access to Fulham Broadway and Earl’s Court amenities. Important negatives — possible insulation/upgrading costs and the need to secure planning for any extension — are balanced by the property’s location and share‑of‑freehold tenure.
1 bedroom flat for sale in Ongar Road, London, SW6 — £500,000 • 1 bed • 1 bath • 553 ft²
1 bedroom flat for sale in Brompton Park Crescent, Fulham, London, SW6 — £500,000 • 1 bed • 1 bath • 531 ft²
1 bedroom flat for sale in Lillie Road, Fulham, London, SW6 — £450,000 • 1 bed • 1 bath • 463 ft²
1 bedroom flat for sale in Merrington Road, London, SW6 — £475,000 • 1 bed • 1 bath • 442 ft²
1 bedroom flat for sale in Fulham Road, Fulham, London, SW6 — £400,000 • 1 bed • 1 bath • 412 ft²
1 bedroom flat for sale in Longridge Road, Earls Court, London, SW5 — £550,000 • 1 bed • 1 bath • 614 ft²






























































































