Modern, compact Fulham home near Munster Road shops and good schools.
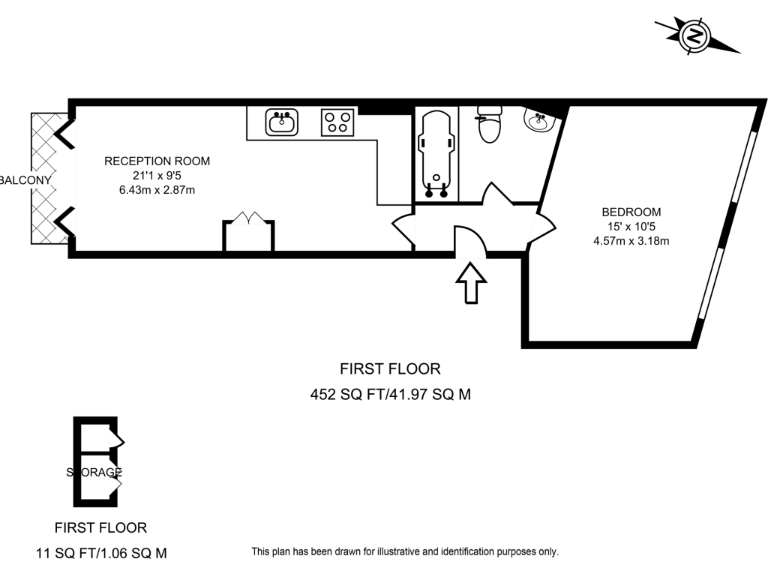
Open-plan reception with Juliet balcony
Stylish integrated kitchen and wood floors
Large bedroom with fitted wardrobes
Separate storage area within the flat
Approximately 463 sq ft — compact one-bedroom
Leasehold tenure — check remaining term and charges
Solid-brick building; no assumed wall insulation
Broadband speeds reported slow in this area
Light-filled and well presented, this first-floor one-bedroom flat offers a practical urban home in Fulham. The open-plan reception and integrated kitchen flow to a Juliet balcony, while wood floors and contemporary bathroom provide a modern finish throughout. The bedroom is large for the size and includes built-in wardrobes, plus a separate storage area.
At around 463 sq ft, the apartment suits a first-time buyer or buy-to-let investor looking for a compact, turnkey property close to Munster Road amenities and good local schools. Transport and mobile signal are excellent, and flooding risk is very low.
Buyers should note the property is leasehold and in a solid brick building likely built 1900–1929 with no known wall insulation. Broadband speeds are reported as slow, and the wider area scores higher for deprivation, which may affect rental yield or resale for some purchasers. Overall condition is modern and well kept, but consider potential heating and insulation upgrades for long-term running costs.
1 bedroom flat for sale in Brompton Park Crescent, Fulham, London, SW6 — £500,000 • 1 bed • 1 bath • 531 ft²
1 bedroom flat for sale in Fulham Road, Fulham, London, SW6 — £400,000 • 1 bed • 1 bath • 412 ft²
1 bedroom flat for sale in Parsons Green Lane, Parsons Green, London, SW6 — £325,000 • 1 bed • 1 bath • 419 ft²
1 bedroom flat for sale in Estcourt Road, Fulham, London, SW6 — £390,000 • 1 bed • 1 bath • 505 ft²
1 bedroom flat for sale in Heckfield Place, London, SW6 — £650,000 • 1 bed • 1 bath • 663 ft²
1 bedroom apartment for sale in Rylston Road, London, SW6 — £480,000 • 1 bed • 1 bath • 585 ft²






































