LN2 5ND - 2 bedroom terraced house for sale in Bernard Street, Lincol…

View on Property Piper

2 bedroom terraced house for sale in Bernard Street, Lincoln, LN2

Summary - 28 BERNARD STREET LINCOLN LN2 5ND

2 bed 1 bath Terraced

Central two-bedroom terrace with skyline views, ideal for first-time buyers ready to personalise..
- Two double bedrooms with period character
- Stunning skyline views across Lincoln
- Modern kitchen; bright living areas
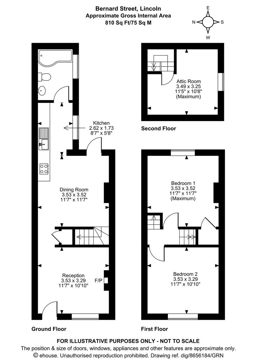
- Freehold mid-terrace, 810 sq ft
- Solid brick walls; likely no cavity insulation
- Heating partly via room heaters; may be inefficient
- High local crime and area deprivation noted
- Small plot, on-street parking only
A compact Victorian mid-terrace offering two double bedrooms and generous views across Lincoln’s skyline. The property feels bright and benefits from a modern kitchen and double glazing, making it move-in friendly in parts while retaining period character.

This freehold mid-terrace is well placed for city-centre amenities, hospital access and public transport, with on-street parking nearby. At around 810 sq ft, the layout suits first-time buyers or professionals seeking a centrally located home with scope to personalise.

Practical points to note: the house dates from the early 20th century with solid brick walls likely lacking cavity insulation, and heating relies partly on room heaters which may affect running costs. The area shows high local crime levels and broader area deprivation, so prospective buyers should weigh this against the low asking price and cheap council tax.

Overall, this is a budget-friendly, characterful terrace offering strong central location and views, but it requires some upgrading and sensible security considerations. It’s a good option for a first-time buyer or buyer willing to invest modestly in energy and cosmetic improvements.

Property Details

Image Descriptions

Floorplan Description

Rooms

Textual Property Features

Target Audience

AI Tags

Detected Visual Features

EPC Details

Nearby Schools

Nearest Bars And Restaurants

,,,,}

Nearest General Shops

,,}

Nearest Grocery shops

,,}

Nearest Supermarkets

,,}

Nearest Religious buildings

,,}

Nearest Medical buildings

,,,}

Nearest Leisure Facilities

,,,,}

Nearest Tourist attractions

,,}

Nearest Train stations

,,,,}

Nearest Bus stations and stops

,,,,}

Nearest Hotels

,,}

Tags

AirBnB Data

Similar Properties

Meta

High Res Images

Compatible Images

Low res Images

Thumbnails

Raw Images

High Res Floorplan Images

Compatible Floorplan Images

Low res Floorplan Images

FloorplanImages Thumbnail

Raw Floorplan Images