Roomy, commuter-friendly home with long lease and private garden for first-time buyers.
Newly extended lease to 172 years
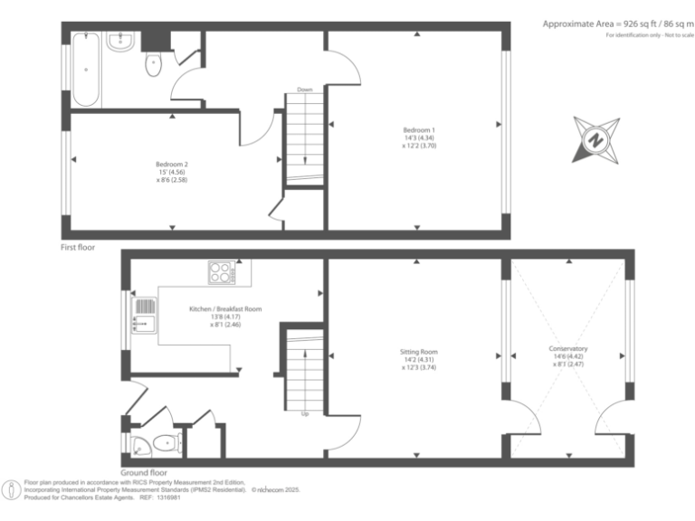
Two double bedrooms and separate downstairs cloakroom
Private rear garden for outdoor use
Large overall size — 926 sq ft
Off-street communal parking (not necessarily allocated)
Single family bathroom only
Built 1976–82 with system-built walls; may need energy upgrades
1.5 miles to town centre and Elizabeth Line station
This spacious two-bedroom maisonette offers 926 sqft of flexible living with a private rear garden — a rare find for first-time buyers seeking room to grow. The lease has just been extended to 172 years, providing long-term security, and the property sits 1.5 miles from Maidenhead town centre and the Elizabeth Line station for straightforward commuting.
Accommodation is arranged over multiple floors and includes two double bedrooms, a family bathroom and a downstairs cloakroom, plus a bright living area with large windows and patio doors. Off-street communal parking and fast broadband/mobil signal add practical everyday convenience for working professionals.
Constructed in the late 1970s/early 1980s from system-built methods with assumed partial insulation, the property may benefit from targeted energy-efficiency improvements. It has a single family bathroom and is leasehold, so buyers should note the tenure and communal parking arrangements. Overall this is a roomy, well-located maisonette with commuter appeal and clear scope to personalise and upgrade.
2 bedroom maisonette for sale in Craufurd Rise, Maidenhead, SL6 — £320,000 • 2 bed • 1 bath • 687 ft²
2 bedroom apartment for sale in North Town Road, Maidenhead, Berkshire, SL6 — £250,000 • 2 bed • 1 bath • 536 ft²
2 bedroom maisonette for sale in Wessex Way, Maidenhead, SL6 — £320,000 • 2 bed • 1 bath • 749 ft²
2 bedroom ground floor maisonette for sale in Norfolk Road, Maidenhead, SL6 — £330,000 • 2 bed • 1 bath • 728 ft²
2 bedroom maisonette for sale in Maidenhead, SL6 — £270,000 • 2 bed • 1 bath • 642 ft²
2 bedroom maisonette for sale in Craufurd Rise, Maidenhead, Berkshire, SL6 — £320,000 • 2 bed • 1 bath • 810 ft²


































































