Short walk to Maidenhead town centre and Elizabeth line station.
Two double bedrooms, bright bay-front reception room
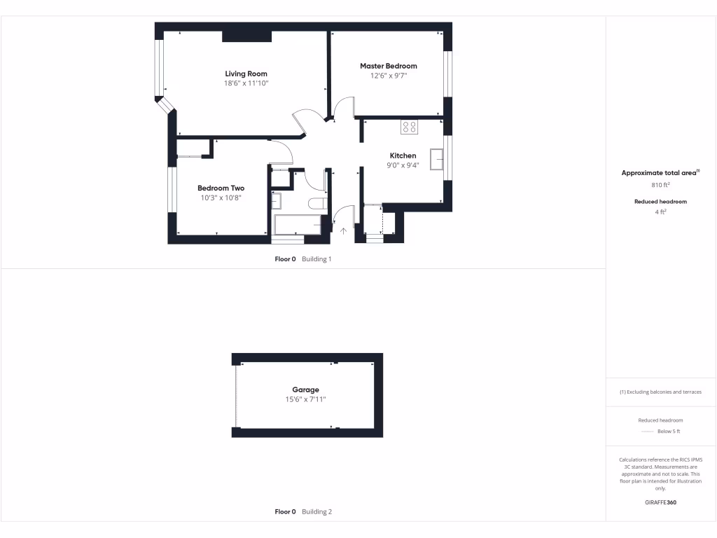
This ground-floor maisonette offers practical two-bedroom accommodation in central Maidenhead, a short walk from the town centre and Elizabeth line station. Light-filled living spaces, a bay-front reception and a private rear patio make it well suited to first-time buyers or buy-to-let investors seeking a convenient location.
Stand-out practical benefits include a private single garage, a 931-year lease and no onward chain for a straightforward purchase. The rear patio and modest front garden provide low-maintenance outdoor space for entertaining and planting without extensive upkeep.
The property is presented in neutral decorative order but has some ageing elements: the kitchen is a 1990s shaker-style fit with laminate worktops, and much of the glazing predates 2002. Construction is post-war cavity brick with no confirmed retrofit wall insulation, so buyers should budget for any desired energy upgrades.
Overall the maisonette delivers an affordable entry into a very affluent area with fast broadband, excellent mobile signal and easy M4 access. It suits a buyer who values location and convenience and is prepared to modernise cosmetic or energy-efficiency elements to add value.
2 bedroom maisonette for sale in Craufurd Rise, Maidenhead, SL6 — £300,000 • 2 bed • 1 bath • 687 ft²
2 bedroom maisonette for sale in Wessex Way, Maidenhead, SL6 — £320,000 • 2 bed • 1 bath • 749 ft²
2 bedroom ground floor maisonette for sale in Norfolk Road, Maidenhead, SL6 — £330,000 • 2 bed • 1 bath • 728 ft²
2 bedroom maisonette for sale in Maidenhead, Berkshire, SL6 — £190,000 • 2 bed • 1 bath • 729 ft²
2 bedroom apartment for sale in North Town Road, Maidenhead, Berkshire, SL6 — £250,000 • 2 bed • 1 bath • 536 ft²
2 bedroom apartment for sale in Dunwood Court, Boyn Valley Road, SL6 — £295,000 • 2 bed • 2 bath • 838 ft²






























