NW10 6AU - 5 bed spacious modern townhouse in Hammersmith, NW10 6AU

View on Property Piper

5 bedroom house for sale in Waldo Road, College Park, NW10

Summary - Waldo Road, College Park NW10 6AU

5 bed 4 bath House

Chain-free five-bedroom family home with two roof terraces and two parking spaces.
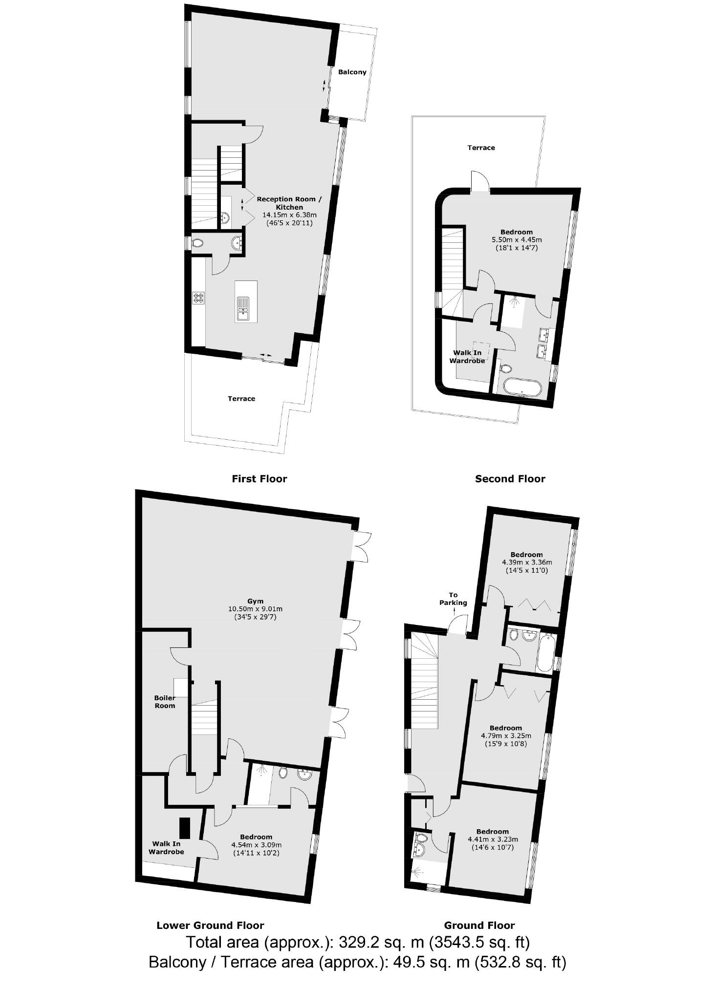
Five double bedrooms and four bathrooms across four levels
Two south-facing roof terraces plus balcony and ground-floor garden
Private off-street parking for two vehicles; chain-free freehold
Large overall size ~3,543 sq ft — good family or rental potential
Built 1900–1929; appears retrofitted modernly — check works/records
Solid brick walls assumed uninsulated; verify thermal performance
Council Tax Band F — expensive running costs
Very high local crime rate; area classed as deprived
Set over four floors, this striking five-double-bedroom freehold house offers generous family accommodation and strong rental potential. The interior is contemporary with large vertical windows, wooden floors and exposed concrete accents; two south-facing roof terraces, a balcony and a ground-floor garden extend living space outdoors. Private off-street parking for two cars and chain-free sale add practical convenience.

The layout includes four bathrooms, flexible lower-ground space (previously used as gym/utility) and sizable reception areas — useful for home-working or multi-generational living. At about 3,543 sq ft, the house feels expansive for NW10 and benefits from excellent mobile and fast broadband, with good local primary and secondary schools nearby.

Important considerations: the surrounding area scores high for crime and is relatively deprived, and council tax is expensive (Band F). The building records show construction dated 1900–1929, while the property presents as a modern/retrofitted design; solid brick walls are assumed to lack cavity insulation. Buyers should confirm insulation, services and any retrofit works prior to exchange. Transport links include Kensal Green and Willesden Junction (Bakerloo & Overground).

This home suits a large family seeking generous, contemporary urban space or an investor wanting a high-spec rental in a well-connected part of NW10 — but factor in local area challenges and likely ongoing maintenance or retrofit works.

Property Details

Brochure Descriptions

Image Descriptions

Rooms

Textual Property Features

Target Audience

AI Tags

Detected Visual Features

EPC Details

Nearby Schools

Nearest Bars And Restaurants

,,,,}

Nearest General Shops

,,}

Nearest Grocery shops

,,}

Nearest Supermarkets

,,}

Nearest Religious buildings

,,}

Nearest Medical buildings

,,,}

Nearest Airports

,}

Nearest Leisure Facilities

,,,,}

Nearest Tourist attractions

,,}

Nearest Train stations

,,,,}

Nearest Bus stations and stops

,,,,}

Nearest Hotels

,,}

Tags

Local Market Stats

AirBnB Data

Similar Properties

Meta

High Res Images

Compatible Images

Low res Images

Thumbnails

Raw Images

High Res Floorplan Images

Compatible Floorplan Images

Low res Floorplan Images

FloorplanImages Thumbnail

Raw Floorplan Images