Spacious plot, chain-free, ideal for family renovation and extension.
Three-bedroom semi-detached on a large, non-estate plot
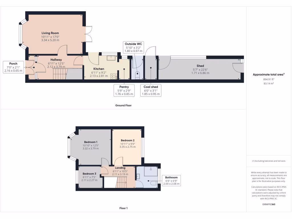
Set on a generous plot in popular Burbage, this three-bedroom semi offers room to create a comfortable family home. The property is chain-free and occupies a non-estate position with a long front garden and ample off-street parking for several cars.
Internally the layout is traditional: entrance porch, hallway, through living room with bay and French doors, kitchen, pantry and three first-floor bedrooms served by a wetroom. A large rear garden, outside WC, coal shed and long workshop add practical space and scope for adaptation or extension (subject to planning).
The house requires modernisation throughout: finishes and fittings are dated, carpets and some internal joinery show wear, and walls are assumed to have no cavity insulation. The boiler and radiators are in place but the EPC is D, so energy improvements and updating will be needed to raise efficiency.
This property suits a family or buyer seeking renovation and extension potential in a very low-crime, well-served village. With good local schools, fast broadband and easy road links, the home rewards practical investment with substantial outdoor space and flexibility for improvement.
3 bedroom semi-detached house for sale in Forryan Road, Burbage, Hinckley, LE10 — £250,000 • 3 bed • 1 bath • 855 ft²
3 bedroom semi-detached house for sale in Rugby Road Burbage LE10 2ND, LE10 — £280,000 • 3 bed • 1 bath • 1152 ft²
3 bedroom semi-detached house for sale in The Meadway, Burbage, Hinckley, Leicestershire, LE10 2UB, LE10 — £240,000 • 3 bed • 1 bath • 780 ft²
3 bedroom semi-detached house for sale in Lychgate Lane, Burbage, LE10 — £230,000 • 3 bed • 1 bath • 668 ft²
3 bedroom semi-detached house for sale in Wolvey Road, Burbage, LE10 — £325,000 • 3 bed • 1 bath • 1005 ft²
3 bedroom semi-detached house for sale in Lychgate Lane, Burbage, LE10 — £230,000 • 3 bed • 1 bath • 732 ft²


























































































