Chain-free family home with garden and garage close to local schools.
No onward chain — ready for a quick purchase
Generous driveway plus single garage for off-road parking
Large, mature rear garden ideal for family outdoor use
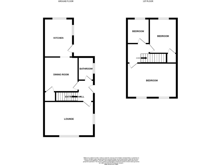
Three bedrooms; one bathroom (plus en-suite WC) — single bath only
Double glazing present but installed before 2002
Brand-new boiler fitted 2025; property also has room heaters/dual fuel
Cavity walls appear uninsulated — potential energy upgrade needed
Internally dated; cosmetic refurbishment likely to add value
This extended three-bedroom semi offers an accessible entry into Hellesdon living with no onward chain and a generous private garden. The layout provides a good-sized lounge, separate dining room and a practical kitchen — a solid base for first-time buyers looking to personalise a home.
Practical benefits include a long driveway, single garage and a large rear garden that suit family life and outside storage. The property has double glazing and a brand-new boiler (installed 2025), plus fast full-fibre broadband — useful for home working and modern living.
The house is straightforward rather than show-home perfect. Internal decoration and kitchen/bathroom fittings are dated and would benefit from cosmetic updating; the property is a clear candidate for modest refurbishment to add value. Walls are cavity construction but insulation is assumed absent, and glazing dates from before 2002, so consider improvement costs when viewing.
Overall, this freehold semi is a practical, chain-free option for first-time buyers keen to secure space and a large garden in a well-served suburb. Early inspection will reveal where simple upgrades could unlock future equity.
3 bedroom semi-detached house for sale in Vera Road, Hellesdon, NR6 — £280,000 • 3 bed • 1 bath • 1045 ft²
3 bedroom detached house for sale in Cottinghams Drive, Hellesdon, Norwich, Norfolk, NR6 — £275,000 • 3 bed • 1 bath • 839 ft²
4 bedroom detached house for sale in Clovelly Drive, Hellesdon, NR6 — £335,000 • 4 bed • 2 bath • 1122 ft²
3 bedroom semi-detached bungalow for sale in Westwood Drive, Hellesdon, Norwich, NR6 — £290,000 • 3 bed • 1 bath • 805 ft²
3 bedroom semi-detached house for sale in Heath Crescent, Hellesdon, Norwich, Norfolk, NR6 — £290,000 • 3 bed • 1 bath • 1312 ft²
3 bedroom link detached house for sale in Meadow Way, Norwich, NR6 — £230,000 • 3 bed • 1 bath • 783 ft²


































































