**Standout Features:**
- Prime residential building plot in sought-after Kelso area
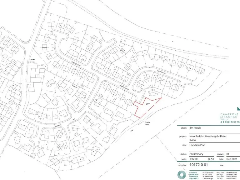
- Outline planning consent approved for a single dwelling (Ref: 22/00021/RREF, granted on January 27, 2023)
- Well-positioned at the end of a cul-de-sac, offering privacy
- Currently laid to grass with neighboring residential properties
- Proximity to recreational amenities including playgrounds, sports facilities, and leisure areas
- Excellent mobile signal coverage and fast broadband speeds
- Affordable local council tax rates
**Property Summary:**
Discover the perfect canvas for your dream home in a highly desirable neighborhood of Kelso. This single residential plot, tucked away at the end of Hendersyde Drive, is waiting for its future homeowner to bring their vision to life. With outline planning permission already in place, the groundwork is laid for constructing a dwelling that suits your needs.
The plot is surrounded by residential properties, providing a sense of community while maintaining the cul-de-sac's tranquility. Located near the confluence of stunning rivers, enjoy easy access to Kelso's recreational amenities, from sports and leisure facilities to playgrounds and scenic green spaces. The site also benefits from excellent mobile and broadband connectivity, ensuring modern conveniences are right at your fingertips.
Explore the potential for creating your forever home in this rich, engaging locale, where you’ll relish both lifestyle and leisure. Act quickly—opportunities like this are rare in such a desirable area.
Land for sale in Plot 3 Hardacres. Near Kelso, TD10 — £135,000 • 1 bed • 1 bath
Plot for sale in Residential Plot, Ladyrig, Kelso, Scottish Borders, TD5 — £149,000 • 1 bed • 1 bath • 5726 ft²
Plot for sale in Plot 2, Rutherford, Kelso, Roxburghshire, TD5 8NP, TD5 — £85,000 • 1 bed • 1 bath • 891 ft²
Plot for sale in Greenlaw, Duns, Scottish Borders, TD10 — £125,000 • 1 bed • 1 bath
Plot for sale in Residential Plots, Smailholm Knowe, Smailholm, Kelso, TD5 — £175,000 • 1 bed • 1 bath • 961 ft²
Land for sale in Plot 4 Hardacres Farm, Near Eccles, Kelso, TD10 — £99,000 • 1 bed • 1 bath






























































































