Chain‑free project with huge garage and development potential close to shops.
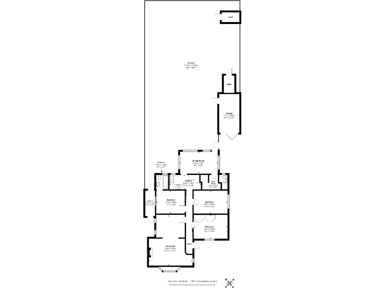
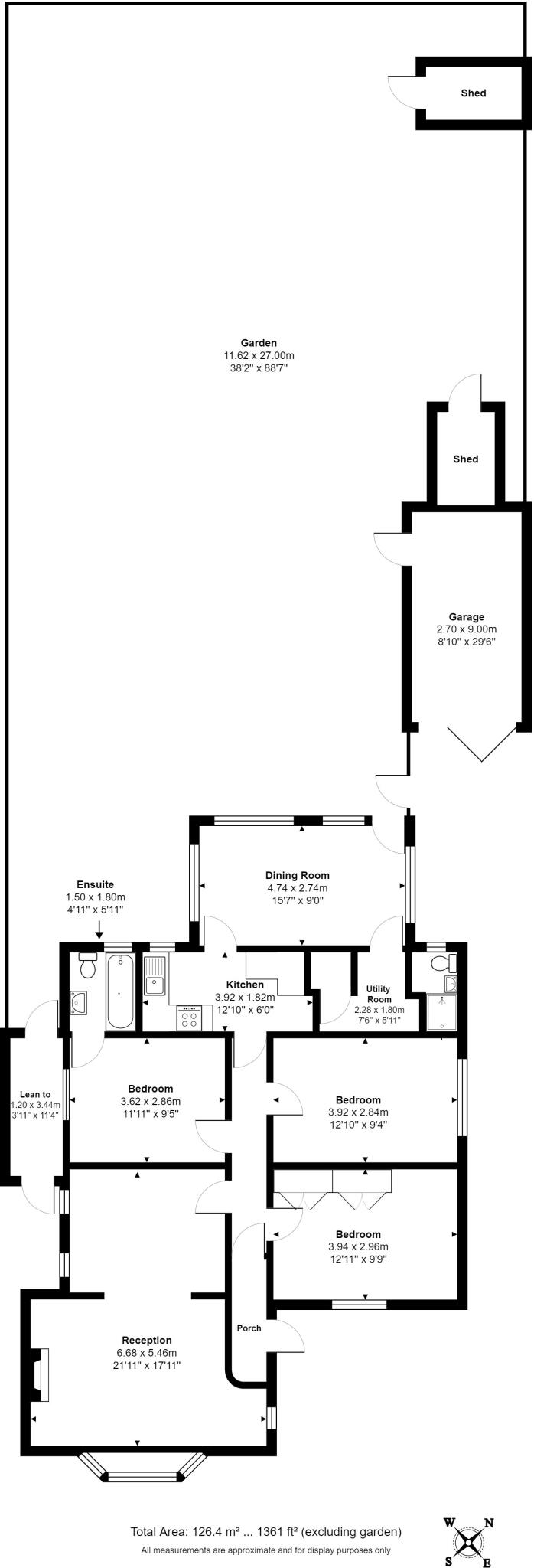
Detached single‑storey bungalow on a large plot with generous garden
Set in the heart of Bricket Wood, this detached three-bedroom bungalow offers single‑storey living with genuine project potential. The property sits on a large plot with off‑street parking for several cars and a substantial garage/workshop — an obvious draw for hobbyists, tradespeople or anyone needing generous storage.
The interior requires full modernisation throughout: the kitchen, bathroom, and general décor date from earlier decades and will need upgrading. Structural risk is not indicated and there is no flood risk, but the cavity walls are assumed uninsulated and heating is by a mains‑gas boiler and radiators, so buyers should budget for thermal and energy improvements.
Planning scope exists to extend or reconfigure (subject to necessary consents), making this an appealing opportunity for buyers wanting to add value. The bungalow is offered chain free and sits within easy walking distance of shops, schools and transport links, with fast broadband and excellent mobile signal supporting modern living or remote work.
Practical drawbacks are straightforward: the house needs comprehensive renovation, council tax is described as expensive, and any development will require planning approval. For a buyer prepared to modernise, this property represents a roomy, accessible home in a very affluent area with strong local amenities.
3 bedroom detached bungalow for sale in The Crescent, Bricket Wood, St. Albans, AL2 — £620,000 • 3 bed • 1 bath • 871 ft²
3 bedroom bungalow for sale in The Uplands, Bricket Wood, St. Albans, Hertfordshire, AL2 — £685,000 • 3 bed • 1 bath • 1233 ft²
4 bedroom bungalow for sale in South Riding, Bricket Wood, St. Albans, AL2 — £710,000 • 4 bed • 2 bath • 1429 ft²
3 bedroom detached bungalow for sale in South Riding, Bricket Wood, St. Albans, AL2 — £715,000 • 3 bed • 1 bath • 1102 ft²
5 bedroom detached bungalow for sale in Lye Lane, Bricket Wood, St. Albans, AL2 — £950,000 • 5 bed • 1 bath • 1809 ft²
2 bedroom semi-detached bungalow for sale in Broad Acre, Bricket Wood, St. Albans, AL2 — £530,000 • 2 bed • 1 bath • 1022 ft²


























