Large corner plot with approved ground-floor expansion and parking for multiple vehicles.
Detached single-storey home on a very large, private corner plot
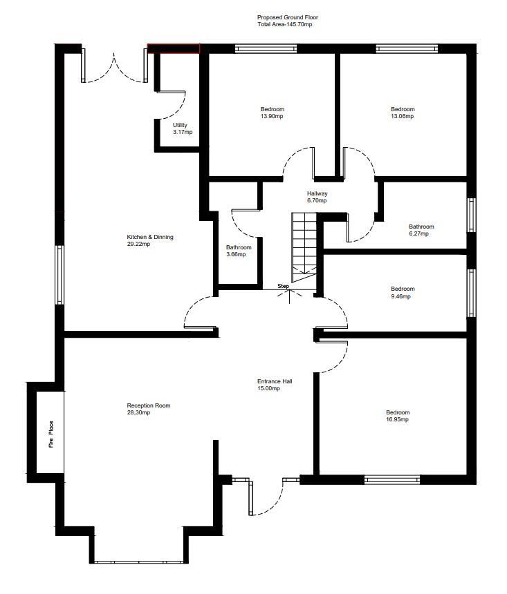
Set back on a substantial, mature corner plot in sought-after Bricket Wood, this detached single-storey home provides generous living space and strong scope for improvement. The reception room and large rooms throughout suit family living, while the double garage and off-street parking serve multiple vehicles. Planning permission has been approved for ground-floor expansion, offering immediate potential to increase the footprint and value.
The bungalow is dated and will suit buyers prepared to renovate. Interior inspection shows areas needing modernization and some signs of neglect, including mould in parts and general cosmetic wear. There is only one bathroom for five bedrooms, which will be a practical consideration for families and could be addressed as part of the approved extension works.
Practical points favour this location: freehold tenure, no upper chain, excellent mobile signal, low local crime and proximity to good primary and outstanding secondary schools. Broadband speeds in the area are reported slow, and the property is in Council Tax Band G, so running costs are relatively high.
For buyers seeking a project with immediate uplift potential, this property offers an unusual combination of size, privacy and planning consent. If you want level living on a very large plot with scope to redesign and extend, this bungalow merits an early viewing.
5 bedroom detached bungalow for sale in Mount Pleasant Lane, Bricket Wood, St. Albans, AL2 — £835,000 • 5 bed • 2 bath • 2029 ft²
3 bedroom detached bungalow for sale in The Crescent, Bricket Wood, St. Albans, AL2 — £620,000 • 3 bed • 1 bath • 871 ft²
3 bedroom detached bungalow for sale in South Riding, Bricket Wood, St. Albans, AL2 — £715,000 • 3 bed • 1 bath • 1102 ft²
2 bedroom semi-detached bungalow for sale in Broad Acre, Bricket Wood, St. Albans, AL2 — £530,000 • 2 bed • 1 bath • 1022 ft²
5 bedroom detached house for sale in Bucknalls Drive, Bricket Wood, St. Albans, AL2 — £950,000 • 5 bed • 2 bath • 1554 ft²
4 bedroom detached house for sale in Old Watford Road, Bricket Wood, St. Albans, AL2 — £750,000 • 4 bed • 2 bath • 1887 ft²










































































