Chain-free home with driveway, garage and garden near good schools.
- Chain free freehold with all main services connected
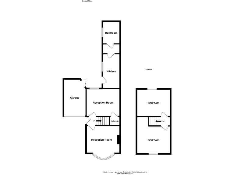
- Two large first-floor bedrooms, well-proportioned
- Two reception rooms plus secluded rear garden
- Driveway, ample off-street parking and single garage
- Compact kitchen and small bathroom; needs modernising
- Exterior maintenance and mid-20th century condition noted
- EPC D; double glazing install date unknown
- Excellent broadband, mobile signal and very low crime
This chain-free, two-bedroom semi-detached house sits in an established Brierley Hill street close to Stourbridge, Merry Hill and local schools. The property offers practical family layout with two well-proportioned first-floor bedrooms, two reception rooms and a secluded rear garden.
Key practical benefits include off-street parking, a driveway, single garage, mains gas central heating with boiler and double glazing. Broadband and mobile coverage are strong and the area records very low crime and good local schooling, making it suitable for first-time buyers or buy-to-let investors.
The house does require some updating and exterior maintenance; the fit-out is mid-20th century and the kitchen and bathroom are compact. EPC rating D and an unknown double glazing install date mean buyers should budget for energy and upgrade works. Viewings are recommended early to assess scope and potential.
Sold freehold with all main services connected and no upward chain, this property offers refurbishment potential and straightforward access to local amenities and transport links. The accommodation is practical and offers a solid platform for cosmetic improvement or rental conversion.
2 bedroom semi-detached house for sale in Cressett Lane, Brockmoor, Brierley Hill, DY5 3XT, DY5 — £184,000 • 2 bed • 1 bath • 872 ft²
2 bedroom semi-detached house for sale in Victoria Street, BRIERLEY HILL., DY5 — £140,000 • 2 bed • 1 bath • 539 ft²
2 bedroom semi-detached house for sale in Swan Street, Pensnett, Brierley Hill, DY5 4DN, DY5 — £175,000 • 2 bed • 1 bath • 786 ft²
2 bedroom semi-detached house for sale in BEECHES VIEW AVENUE, Halesowen, B63 2HB, B63 — £190,000 • 2 bed • 1 bath • 754 ft²
3 bedroom semi-detached house for sale in Waterfall Road, Amblecote, Brierley Hill, DY5 2QP, DY5 — £240,000 • 3 bed • 1 bath • 732 ft²
2 bedroom semi-detached house for sale in Wavell Road, Brierley Hill, DY5 2EX, DY5 — £220,000 • 2 bed • 1 bath • 743 ft²






































































































